Запчасти Hyundai HL730-9 PAGE 3040 ATTACHMENT HYDRAULIC PIPING ГИДРАВЛИЧЕСКАЯ СИСТЕМА

Схема запчастей Hyundai HL730-9 - PAGE 3040 ATTACHMENT HYDRAULIC PIPING ГИДРАВЛИЧЕСКАЯ СИСТЕМА
FIT
1:1
100%

Артикул

Название

Примечание

Количество

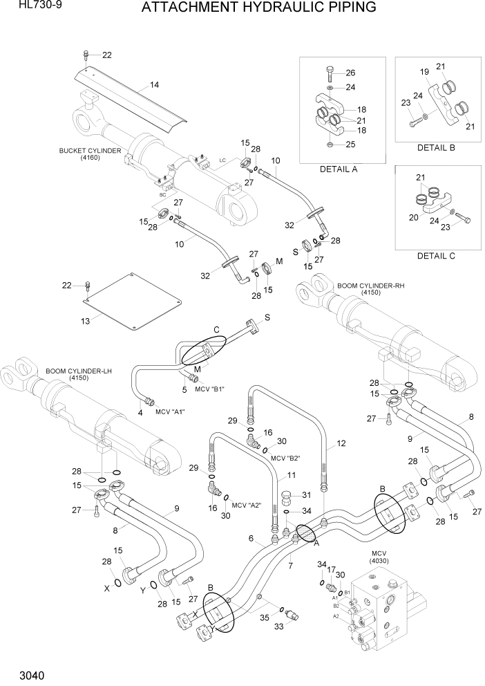
4

31LP-20011

PIPE WA-LH

1шт.

5

31LP-20021

PIPE WA-RH

1шт.

6

31LP-20142

PIPE WA

1шт.

7

31LP-20152

PIPE WA

1шт.

8

P704-126319

HOSE ASSY

2шт.

9

P704-126321

HOSE ASSY

2шт.

10

31LP-20252

HOSE ASSY

2шт.

11

P910-166017

HOSE ASSY-ORFS 0X0

1шт.

12

P910-166018

HOSE ASSY-ORFS 0X0

1шт.

13

31LP-20091

COVER

1шт.

14

31LM-20450

COVER

HL730-9

1шт.

14

31LM-20460

COVER

HL730XTD-9

1шт.

15

P173-120102

FLANGE-HYD,SPLIT

24шт.

16

31LB-40370

ELBOW-90,ORFS

2шт.

17

31FQ-80120

CONNECTOR

2шт.

18

31L7-20120

CLAMP

2шт.

19

31L7-20130

CLAMP

2шт.

20

31LN-20140

CLAMP

1шт.

21

S690-027100

GROMMET(FOR ONE LINE)

8шт.

22

S037-122556

BOLT-W/WASHER

6шт.

23

S017-120506

BOLT-HEX

3шт.

24

S441-12000B

WASHER-HARDENED

5шт.

25

S205-12100B

NUT-HEX

1шт.

26

S017-120706

BOLT-HEX

1шт.

27

S109-100306

BOLT-SOCKET

48шт.

28

Y171-019004

O-RING

12шт.

29

S621-021001

O-RING

4шт.

30

S611-030001

O-RING

4шт.

31

X710-100105

CAP-HYD,ORFS

2шт.

32

S760-061006

GROMMET

2шт.

33

31Q8-40500

SENSOR-PRESSURE

LOAD SENSING

2шт.

34

S621-018001

O-RING

4шт.

35

S631-011004

O-RING

2шт.

Выбрано товаров: 0