Запчасти Hyundai HL730TM-9 PAGE 2080 BATTERY CABLE ELECTRIC ЭЛЕКТРИЧЕСКАЯ СИСТЕМА

Схема запчастей Hyundai HL730TM-9 - PAGE 2080 BATTERY CABLE ELECTRIC ЭЛЕКТРИЧЕСКАЯ СИСТЕМА
FIT
1:1
100%

Артикул

Название

Примечание

Количество

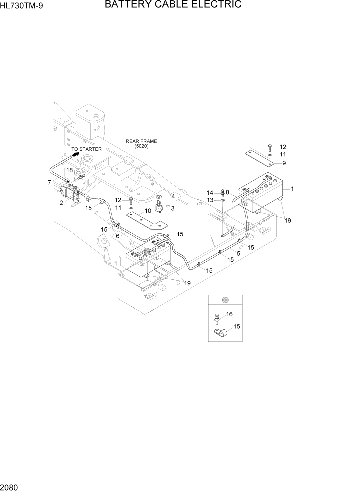
1

21E6-20270

BATTERY

2шт.

2

21E5-0003

RELAY-BATTERY

1шт.

3

21LM-10500

SWITCH-MASTER

1шт.

4

21LD-34180

DECAL-MASTER SWITCH

1шт.

5

21LP-05500

CABLE(BATT-BATT)

1шт.

6

21LP-05312

CABLE(BATT-BATT RY)

1шт.

7

21LF-34130

CABLE(BATT RY-STARTER)

1шт.

8

21LM-02250

CABLE(BATT-EARTH)

1шт.

9

21LN-05200

PLATE

1шт.

10

21LP-05212

PLATE

1шт.

11

S411-100006

WASHER-SPRING

4шт.

12

S017-102306

BOLT-HEX

4шт.

13

S431-100002

WASHER-INTERNAL T/LOCK

1шт.

14

S037-102022

BOLT-W/WASHER

EARTH

1шт.

15

31L7-10200

CLAMP-TUBE

7шт.

16

S037-102056

BOLT-W/WASHER

2шт.

18

S035-083526

BOLT-W/WASHER

2шт.

19

21L8-10170

PAD-RUBBER

4шт.

Выбрано товаров: 18