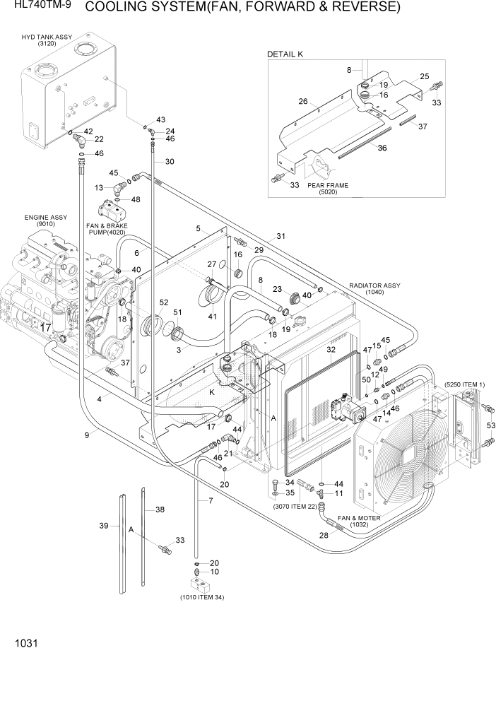
Запчасти Hyundai HL740TM-9 PAGE 1031 COOLING SYSTEM(FAN, FORWARD & REVERSE) СИСТЕМА ДВИГАТЕЛЯ

Схема запчастей Hyundai HL740TM-9 - PAGE 1031 COOLING SYSTEM(FAN, FORWARD & REVERSE) СИСТЕМА ДВИГАТЕЛЯ
FIT
1:1
100%

Артикул

Название

Примечание

Количество

3

11LN-30011

HOSE-RUBBER LOW

1шт.

4

11LN-30021

HOSE-RUBBER LOW

1шт.

5

11LN-30032

SCREEN

1шт.

6

P760-011100

HOSE-RUBBER

1шт.

7

P760-021088

HOSE-RUBBER

1шт.

8

P760-033120

HOSE-RUBBER

1шт.

9

P910-122042

HOSE ASSY-ORFS 0X0

1шт.

10

P090-100808

CONNECTOR-HOSE

1шт.

11

X820-125354

TEE-R/TYPE,ORFS

1шт.

12

11LM-30300

CONNECTOR

1шт.

13

11LF-30730

ELBOW-90

1шт.

14

11LC-30470

CONNECTOR-ORFS

1шт.

15

X500-310003

CONNECTOR-ORFS

1шт.

16

S681-460400

GROMMET

2шт.

17

S572-650006

CLAMP-HOSE,WIRE TYPE

4шт.

18

S572-600006

CLAMP-HOSE,WIRE TYPE

4шт.

19

S572-320006

CLAMP-HOSE,WIRE TYPE

4шт.

20

S572-220006

CLAMP-HOSE,WIRE TYPE

2шт.

21

X530-110004

ELBOW-45,ORFS

1шт.

22

X520-110018

ELBOW-90,ORFS

1шт.

23

14E7-01070

SIGHT GAUGE ASSY

1шт.

24

X520-110014

ELBOW-90,ORFS

1шт.

25

11LN-30323

SCREEN PLATE-RH

1шт.

26

11LN-30313

SCREEN PLATE-LH

1шт.

27

S681-290400

GROMMET

1шт.

28

P930-122022

HOSE ASSY-ORFS 0X90

1шт.

29

S037-122056

BOLT-W/WASHER

10шт.

30

P910-062066

HOSE ASSY-ORFS 0X0

1шт.

31

P920-084052

HOSE ASSY-ORFS 0X45

1шт.

32

S771-033400

WEATHER STRIP

1шт.

33

S037-102056

BOLT-W/WASHER

16шт.

34

S017-16035D

BOLT-HEX

7шт.

35

S441-160006

WASHER-HARDENED

7шт.

36

S772-001400

WEATHER STRIP

1шт.

37

S772-004400

WEATHER STRIP

1шт.

38

11LN-30411

SCREEN PLATE-LH

2шт.

39

S772-010500

WEATHER STRIP

2шт.

40

S571-180002

CLAMP-HOSE,WIRE TYPE

2шт.

41

S791-020050

GROMMET-PLATE

1шт.

42

S631-029004

O-RING

1шт.

43

S631-018004

O-RING

1шт.

44

S631-024004

O-RING

2шт.

45

S621-014001

O-RING

2шт.

46

S621-018001

O-RING

4шт.

47

S611-016001

O-RING

2шт.

48

S611-023001

O-RING

1шт.

49

S621-012001

O-RING

4шт.

50

S611-009001

O-RING

1шт.

51

S791-020032

GROMMET-PLATE

1шт.

52

S791-020046

GROMMET-PLATE

1шт.

53

S037-122556

BOLT-W/WASHER

6шт.

Выбрано товаров: 51