Запчасти Hyundai HL757TM-9 PAGE 2030 CAB ELECTRIC 4 ЭЛЕКТРИЧЕСКАЯ СИСТЕМА

Схема запчастей Hyundai HL757TM-9 - PAGE 2030 CAB ELECTRIC 4 ЭЛЕКТРИЧЕСКАЯ СИСТЕМА
FIT
1:1
100%

Артикул

Название

Примечание

Количество

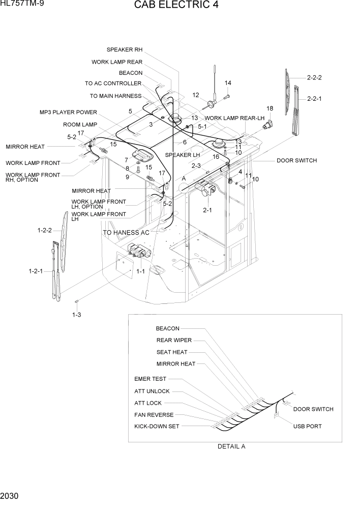
1

21LM-37000

FR WIPER MOTOR KIT ASSY

1шт.

1-1

21LM-37010

MOTOR-WIPER

1шт.

1-2

21LM-37020

WIPER ARM&BLADE ASSY

1шт.

1-2-1

21LM-37050

WIPER ARM ASSY

1шт.

1-2-2

21LM-37060

WIPER BLADE ASSY

1шт.

1-3

24L3-41500

VALVE-WIPER

1шт.

2

21LM-37100

RR WIPER MOTOR KIT ASSY

1шт.

2-1

21LM-37110

MOTOR-WIPER

1шт.

2-2

21LM-37120

WIPER ARM&BLADE ASSY

1шт.

2-2-1

24L3-41200

WIPER ARM-REAR

1шт.

2-2-2

21M8-50300

WIPER BLADE-REAR

1шт.

2-3

24L3-41500

VALVE-WIPER

1шт.

3

S661-260800

GROMMET

REMOTE CNTL

1шт.

4

E123-3022

SWITCH-DOOR

1шт.

5

21LM-01074

HARNESS-CABIN

1шт.

5-1

S880-132060

GROMMET

1шт.

5-2

S880-132040

GROMMET

2шт.

6

21LM-01091

HARNESS-AIRCON,HEATER

1шт.

7

21Q4-50101

LAMP-ROOM

1шт.

7-1

21E1-49690

BULB-ROOM LAMP

NOT SHOWN

1шт.

8

S411-050006

WASHER-SPRING

2шт.

9

S161-050166

SCREW-CROSS R/ROUND

2шт.

10

S161-040106

SCREW-CROSS R/ROUND

10шт.

11

S411-040006

WASHER-SPRING

10шт.

12

21N6-10410

ANTENNA

1шт.

13

21LB-20401

SPEAKER ASSY

2шт.

14

S151-040156

SCREW-TAPPING

2шт.

15

S035-082026

BOLT-W/WASHER

6шт.

16

S553-035140

CLAMP-BAND

7шт.

17

S593-000902

CLIP-HARNESS

6шт.

18

21LM-01420

SOCKET-POWER

1шт.

Выбрано товаров: 31