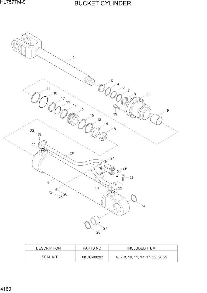
Запчасти Hyundai HL757TM-9 PAGE 4160 BUCKET CYLINDER ГИДРАВЛИЧЕСКИЕ КОМПОНЕНТЫ

Схема запчастей Hyundai HL757TM-9 - PAGE 4160 BUCKET CYLINDER ГИДРАВЛИЧЕСКИЕ КОМПОНЕНТЫ
FIT
1:1
100%

Артикул

Название

Примечание

Количество

*

31LM-20490

BUCKET CYL-LH

1шт.

*

31LM-20500

BUCKET CYL-RH

1шт.

1

XKCC-00267

TUBE ASSY-LH

1шт.

1

XKCC-00284

TUBE ASSY-RH

1шт.

2

XKCC-00638

ROD ASSY

1шт.

3

XKCC-00268

GLAND

1шт.

K4

XKCC-00639

DUST WIPER

1шт.

5

XKCC-00081

RING-RETAINING

1шт.

K6

XKCC-00640

ROD SEAL

1шт.

K7

XKCC-00083

RING-BACK UP

1шт.

K8

XKCC-00641

BUFFER RING

1шт.

9

XKCC-00085

BUSHING-DU

1шт.

K10

XKCC-00269

O-RING

1шт.

K11

XKCC-00270

RING-BACK UP

1шт.

12

XKCC-00271

PISTON

1шт.

K13

XKCC-00642

PISTON SEAL

1шт.

K14

XKCC-00643

WEAR RING

1шт.

K15

XKCC-00274

DUST RING

1шт.

K16

XKCC-00122

O-RING

1шт.

K17

XKCC-00275

RING-BACK UP

2шт.

18

XKCC-00644

NYLON NUT

1шт.

19

XKCC-00276

SOCKET BOLT-HEX

12шт.

20

XKCC-00645

PIPE ASSY-ROD,LH

1шт.

20

XKCC-00648

PIPE ASSY-ROD,RH

1шт.

21

XKCC-00646

PIPE ASSY-BASE,LH

1шт.

21

XKCC-00649

PIPE ASSY-BASE,RH

1шт.

K22

XKCC-00277

O-RING

2шт.

23

XKCC-00278

SOCKET BOLT-HEX

8шт.

24

XKCC-00279

U-BOLT

2шт.

25

XKCC-00131

HEX NUT

4шт.

26

XKCC-00132

SPRING WASHER

4шт.

27

XKCC-00647

BUSHING-PIN

1шт.

K28

XKCC-00096

SEAL-DUST

2шт.

K29

XKCC-00281

O-RING

2шт.

K

XKCC-00283

SEAL KIT

SEE ILLUST

1шт.

Выбрано товаров: 35