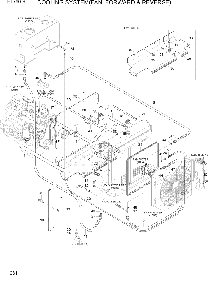
Запчасти Hyundai HL760-9 PAGE 1031 COOLING SYSTEM(FAN, FORWARD & REVERSE) СИСТЕМА ДВИГАТЕЛЯ

Схема запчастей Hyundai HL760-9 - PAGE 1031 COOLING SYSTEM(FAN, FORWARD & REVERSE) СИСТЕМА ДВИГАТЕЛЯ
FIT
1:1
100%

Артикул

Название

Примечание

Количество

3

11LL-30031

HOSE-RUBBER LOW

1шт.

4

11LL-30040

HOSE-RUBBER LOW

1шт.

5

11LL-30093

SCREEN

1шт.

6

P930-124058

HOSE ASSY-ORFS 0X90

1шт.

7

11LC-30470

CONNECTOR-ORFS

2шт.

8

31LF-30080

ELBOW-90

1шт.

9

P930-122028

HOSE ASSY-ORFS 0X90

1шт.

10

P910-062068

HOSE ASSY-ORFS 0X0

1шт.

11

P920-162034

HOSE ASSY-ORFS 0X45

1шт.

12

X820-165354

TEE-R/TYPE,ORFS

1шт.

13

X500-110005

CONNECTOR-ORFS

1шт.

14

P090-100808

CONNECTOR-HOSE

1шт.

15

P760-033146

HOSE-RUBBER LOW

1шт.

16

P760-021088

HOSE-RUBBER

1шт.

17

P760-011130

HOSE-RUBBER

1шт.

18

14E7-01070

SIGHT GAUGE ASSY

1шт.

19

S572-320006

CLAMP-HOSE,WIRE TYPE

4шт.

20

S572-200006

CLAMP-HOSE,WIRE TYPE

2шт.

21

S520-017000

CLAMP-HOSE

2шт.

22

S572-640006

CLAMP-HOSE,WIRE TYPE

4шт.

23

S572-580002

CLAMP-HOSE,WIRE TYPE

4шт.

24

X520-110014

ELBOW-90,ORFS

1шт.

25

S681-460400

GROMMET

3шт.

26

S681-290400

GROMMET

1шт.

27

X530-110005

ELBOW-45,ORFS

1шт.

28

11LM-30300

CONNECTOR

1шт.

29

S771-037000

WEATHER STRIP

1шт.

30

S037-122556

BOLT-W/WASHER

16шт.

31

S017-16035D

BOLT-HEX

6шт.

32

S441-160006

WASHER-HARDENED

6шт.

33

11LL-30361

SCREEN PLATE-RH

1шт.

34

11LL-30351

SCREEN PLATE-LH

1шт.

35

S772-002700

WEATHER STRIP

1шт.

36

S772-004900

WEATHER STRIP

1шт.

37

11LL-30410

SCREEN PLATE-LH

2шт.

38

S772-010500

WEATHER STRIP

2шт.

39

S037-102056

BOLT-W/WASHER

10шт.

40

S037-101556

BOLT-W/WASHER

6шт.

41

S791-020046

GROMMET-PLATE

2шт.

42

S791-020032

GROMMET-PLATE

1шт.

43

S631-029004

O-RING

3шт.

44

S621-018001

O-RING

4шт.

45

S611-023001

O-RING

1шт.

46

S611-009001

O-RING

1шт.

47

S611-016001

O-RING

2шт.

48

S621-021001

O-RING

2шт.

49

S621-012001

O-RING

2шт.

50

S631-018004

O-RING

1шт.

Выбрано товаров: 48