Запчасти Hyundai R210LC3LL CAB ELECTRIC 2

Схема запчастей Hyundai R210LC3LL - CAB ELECTRIC 2
FIT
1:1
100%

Артикул

Название

Примечание

Количество

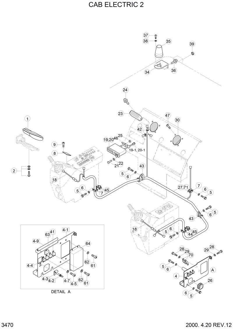
21E9-20330

21E9-20330-Cassette Radio-General

21W1-10302

21W1-10302-Harness-Main

E2004050700C

E2004050700C-. Conn-A,H818hhd/Hhu

21W1-20022

21W1-20022-Harness Main

21E9-20310

21E9-20310-Cassette Radio-U.S.A.

21E9-20320

21E9-20320-Cassette Radio-Europe

E2004050700C

E2004050700C-. Conn-A,H818hhd/Hhu

1

21E6-00200

21E6-00200-Cluster Assy

18

21E1-49750

21E1-49750-Harness-Ext

2

S175-060166

S175-060166-Bolt-Hex,Rd Hd

20-1

21E1-60340

21E1-60340-. Harness-Ext

20-1

21E1-60340

21E1-60340-. Harness-Ext

23

21EM-30520

21EM-30520-Box-Fuse

24

S132-062546

S132-062546-Screw-W/Washer

25

S201-051006

S201-051006-Nut-Hex

26

71EM-10230

71EM-10230-Grommet

27

21W1-10301

21W1-10301-Harness-Main

28

S015-080166

S015-080166-Bolt-Hex

29

S411-080006

S411-080006-Washer-Spring

3

21E6-20290

21E6-20290-Grommet-Rubber

30

21EM-40220

21EM-40220-Speaker Assy

34

21EK-00580

21EK-00580-Bracket-Beacon Lamp

35

21EK-10420

21EK-10420-Beacon Lamp Assy

35-1

21EK-10330

21EK-10330-. Bulb

36

S132-062066

S132-062066-Screw-W/Washer

37

S161-050166

S161-050166-Screw

37

S161-050166

S161-050166-Screw

38

S411-050006

S411-050006-Washer-Spring

38

S411-050006

S411-050006-Washer-Spring

39

S681-100400

S681-100400-Grommet

4

21EM-30500

21EM-30500-Relay Board Assy

4-1

21EM-30510

21EM-30510-. Bracket

4-2

21E9-2003

21E9-2003-. Switch-Prolix

4-3

21E1-49430

21E1-49430-. Ring-Lock

4-4

21E4-0011

21E4-0011-. Relay-4p

4-5

S161-060166

S161-060166-. Screw

4-7

S411-060006

S411-060006-. Washer-Spring

4-9

S791-030175

S791-030175-. Grommet-Plate

41

21E4-0011

21E4-0011-Relay-4p

42

S551-050203

S551-050203-Clamp-Band

43

21E9-00170

21E9-00170-Clip-Harness

44

21EM-40160

21EM-40160-Clamp

45

21EM-40170

21EM-40170-Clamp

46

21E1-49810

21E1-49810-Plate-Cassette Radio

47

S151-040166

S151-040166-Screw

5

S017-100206

S017-100206-Bolt-Hex

6

S411-100006

S411-100006-Washer-Spring

61

S161-060166

S161-060166-Screw

62

S411-060006

S411-060006-Washer-Spring

63

21E7-2000

21E7-2000-Prolix Resistor

64

21EM-32131

21EM-32131-Cpu Controller

64-1

21EM-32140

21EM-32140-. Ep-Rom

7

21EM-40150

21EM-40150-Clamp

70

21EM-40180

21EM-40180-Clamp

71

21W1-20021

21W1-20021-Harness-Main

8

21EL-20100

21EL-20100-Cover

9

S141-040166

S141-040166-Screw-C/R,Flat Hd

N19

21E9-4001

21E9-4001-Cassette Radio

N20

21E8-40010

21E8-40010-Cassette Radio

Выбрано товаров: 59