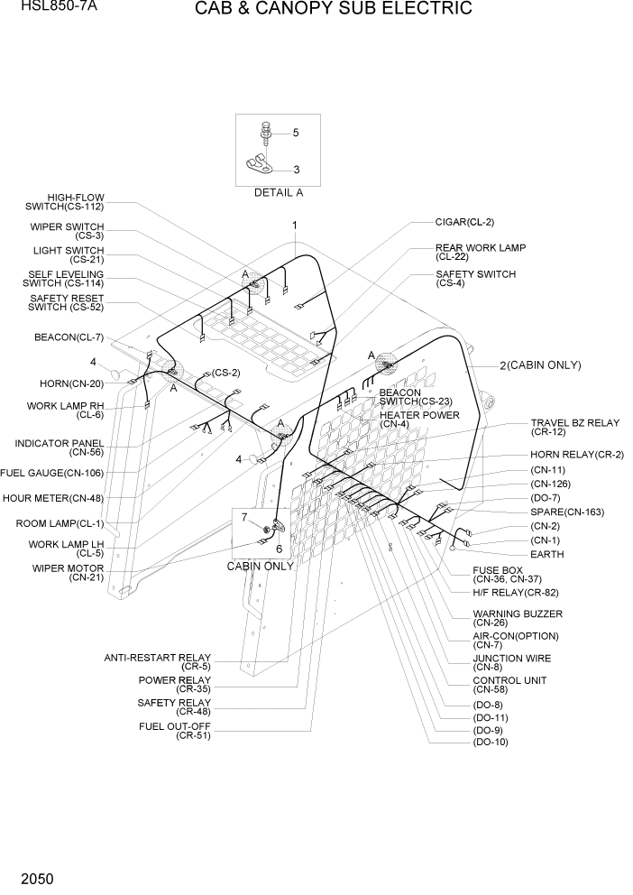
Запчасти Hyundai HSL850-7A PAGE 2050 CAB & CANOPY SUB ELECTRIC ЭЛЕКТРИЧЕСКАЯ СИСТЕМА

Схема запчастей Hyundai HSL850-7A - PAGE 2050 CAB & CANOPY SUB ELECTRIC ЭЛЕКТРИЧЕСКАЯ СИСТЕМА
FIT
1:1
100%

Артикул

Название

Примечание

Количество

*

20S8-30210

ELEC CANOPY SUB GROUP

CANOPY TYPE

1шт.

*

20S8-30220

ELEC CABIN SUB GROUP

CAB TYPE

1шт.

1

21S8-30011

HARNESS-MAIN

#0109

1шт.

1

21S8-30012

HARNESS-MAIN

#0110

1шт.

2

21S7-02441

HARNESS-AIRCON,HEATER

CAB TYPE

1шт.

3

S593-000752

CLIP-HARNESS

4шт.

4

71S4-70100

CAP-RUBBER

2шт.

5

S035-081526

BOLT-W/WASHER

4шт.

6

S593-000902

CLIP-HARNESS

CAB TYPE

1шт.

7

S205-10100B

NUT-HEX

CAB TYPE

1шт.

Выбрано товаров: 10