Запчасти Hyundai HSL400T PAGE 6062 ELECTRICAL WIRING, ROPS ЭЛЕКТРИЧЕСКАЯ СИСТЕМА

Схема запчастей Hyundai HSL400T - PAGE 6062 ELECTRICAL WIRING, ROPS ЭЛЕКТРИЧЕСКАЯ СИСТЕМА
FIT
1:1
100%

Артикул

Название

Примечание

Количество

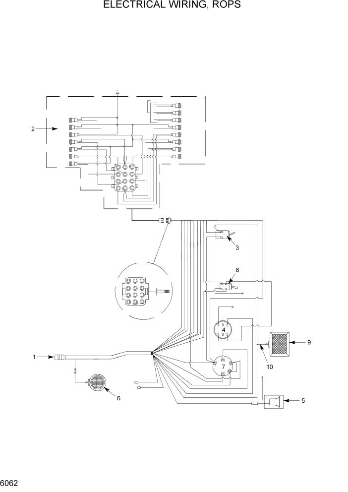
1

YCAC-00912

HARNESS-ROPS WIRE

1шт.

2

YCAC-01469

PANEL-INDICATOR DISPLAY

1шт.

3

YCAC-00852

SWITCH-WORK LIGHT

TOGGLE

1шт.

4

YCAC-01473

METER-FUEL/HOUR

1шт.

5

YCAC-00990

ALARM-FAST SOUNDING

OPT

1шт.

6

YCAC-00608

LIGHT-RR WORK

RR WORK-OPT

1шт.

7

YCAC-00417

SWITCH-IGNITION,KUBOTA

1шт.

YCAC-00391

KEY-IGNITION,KUBOTA

NOT SHOWN

1шт.

8

YCAC-00853

SWITCH-OPT,AUX HYD

1шт.

9

YCAC-01580

LIGHT-FR WORK

1шт.

YCAC-01639

BULB-HALOGEN 50W-12V

NOT SHOWN

1шт.

10

YCAC-01581

HARNESS

HALOGEN LAMP

1шт.

Выбрано товаров: 12