Запчасти Hyundai HSL610 PAGE 3110 BUCKET HYDRAULIC ГИДРАВЛИЧЕСКАЯ СИСТЕМА

Схема запчастей Hyundai HSL610 - PAGE 3110 BUCKET HYDRAULIC ГИДРАВЛИЧЕСКАЯ СИСТЕМА
FIT
1:1
100%

Артикул

Название

Примечание

Количество

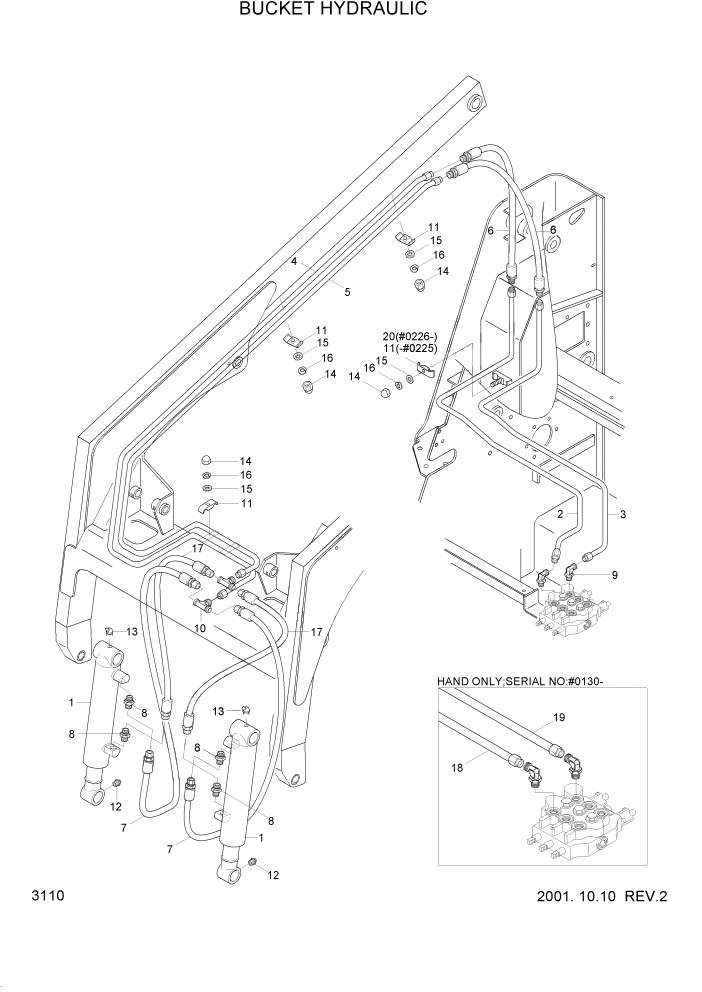
1

31S1-1007

BUCKET CYLINDER ASSY

2шт.

2

31S4-10071

TUBE ASSY-1/2"OD

HAND/FOOT

1шт.

3

31S4-10080

TUBE ASSY-1/2"OD

HAND/FOOT

1шт.

4

31S4-10130

TUBE ASSY-1/2"OD

#0129

1шт.

4

31S4-10131

TUBE ASSY-1/2"OD

#0130

1шт.

5

31S4-10140

TUBE ASSY-1/2"OD

#0129

1шт.

5

31S4-10141

TUBE ASSY 1/2"OD

#0130

1шт.

6

31S4-20160

HOSE ASSY-3/8"ID

STD

2шт.

7

31S4-20170

HOSE ASSY-3/8"ID

2шт.

8

P010-810003

CONNECTOR

4шт.

9

P020-810003

ELBOW-90

2шт.

10

31S1-1062

TEE

2шт.

11

31S4-10871

CLAMP-TUBE

#0225

5шт.

11

31S4-10871

CLAMP-TUBE

#0226

4шт.

12

S651-810002

NIPPLE-GREASE

2шт.

13

S652-810002

NIPPLE-GREASE

2шт.

14

S295-080002

NUT-DOMED CAP

5шт.

15

S403-081002

WASHER-PLAIN

5шт.

16

S411-080002

WASHER-SPRING

5шт.

17

31S1-1063

HOSE ASSY-3/8 ID

2шт.

18

32S4-10070

TUBE ASSY-1/2"OD

HAND ONLY #0130

1шт.

19

32S4-10080

TUBE ASSY-1/2"OD

HAND ONLY #0130

1шт.

20

31S4-10851

CLAMP-TUBE

#0226

1шт.

Выбрано товаров: 23