Запчасти Hyundai R200LC TRAVEL MOTOR(ONE SPEED MOTOR)

Схема запчастей Hyundai R200LC - TRAVEL MOTOR(ONE SPEED MOTOR)
FIT
1:1
100%

Артикул

Название

Примечание

Количество

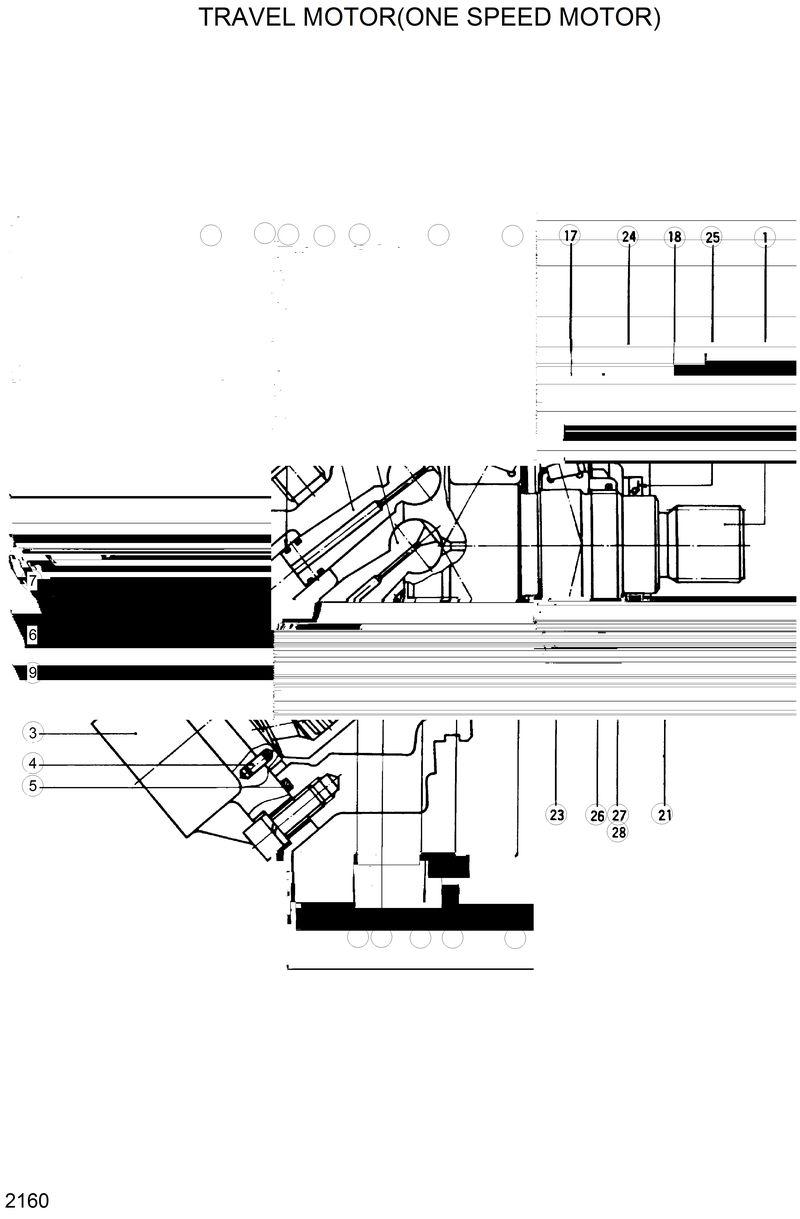
*-2

E131-1072

E131-1072-Reduction Gear

*-3

A2FE63-MHB20

A2FE63-MHB20-Counter Balance V/V

1

413901

413901-.. Rotary Group

10

409992

409992-.. Pin-Central

11

426813

426813-.. Piston

12

417558

417558-.. Collar-Spring

13

402352

402352-.. Spring-Cup

14

156195

156195-.. Ring

15

418286

418286-.. Rotary Group

17

408443

408443-.. Bearing-Ring

18

408442

408442-.. Cover-Front

19

409994

409994-.. Disc

2

418798

418798-.. Housing

20

417825

417825-.. Plate-Retaining

21

156021

156021-.. Nut-Ring

22

156194

156194-.. Tapered-Roller Brg

23

154808-DIN720

154808-DIN720-.. Tapered-Roller Brg

24

154528-DIN472

154528-DIN472-.. Ring-Retaining

25

152916

152916-.. Ring-Shaft Seal

26

086949

086949-.. O-Ring

27

152831-DIN988

152831-DIN988-.. Shim

28

084592-DIN988

084592-DIN988-.. Shim

29

153617-DIN7985

153617-DIN7985-.. Screw-Lens

3

416456

416456-.. Plate-Port

4

084150-DIN7-ST

084150-DIN7-ST-.. Pin-Cylinder

5

086324

086324-.. O-Ring

6

083060-DIN912

083060-DIN912-.. Bolt-Socket

7

083251-DIN7980

083251-DIN7980-.. Washer-Lock

9

409990

409990-.. Plate-Control

N*-1

E131-0609

E131-0609-. Travel Motor

N16

426883

426883-.. Shaft-Drive

Выбрано товаров: 31