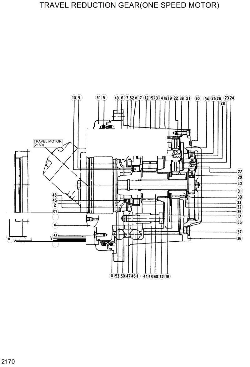
Запчасти Hyundai R200LC TRAVEL REDUCTION GEAR(ONE SPEED MOTOR)

Схема запчастей Hyundai R200LC - TRAVEL REDUCTION GEAR(ONE SPEED MOTOR)
FIT
1:1
100%

Артикул

Название

Примечание

Количество

*

E131-1072

E131-1072-. Reduction Gear

1

633030352

633030352-.. Shaft

10

680700100

680700100-.. Steel. Disc

11

662001960

662001960-.. Spacer

12

683300170

683300170-.. Flange

13

642020180

642020180-.. Planet

14

6345201110

6345201110-.. Pin

15

712766009

712766009-.. Roller

17

655502990

655502990-.. Carrier-Planet

18

634510290

634510290-.. Pin

2

711358005

711358005-.. Screw

20

712766010

712766010-.. Rollers

21

720971006

720971006-.. Screw

24

642020140

642020140-.. Planet

25

642000180

642000180-.. Planet

26

683300101

683300101-.. Flange

26

683300101

683300101-.. Flange

27

634510280

634510280-.. Pin

28

718298726

718298726-.. Ring-Elastic

28

718298726

718298726-.. Ring-Elastic

29

712770010

712770010-.. Flange

29

712770010

712770010-.. Flange

3

718299109

718299109-.. Ring-Elastic

30

663350111

663350111-.. Pad

31

643001090

643001090-.. Gear-Sun

32

660500810

660500810-.. Ring-Cent

32

660500810

660500810-.. Ring-Cent

33

718293008

718293008-.. Ring-Elastic

34

655502800

655502800-.. Planet-Carrier

35

653000652

653000652-.. Cover

36

718006008

718006008-.. Washer

37

722366103

722366103-.. Plug

38

715303309

715303309-.. O-Ring

39

643020220

643020220-.. Gear-Sun

4

632590462

632590462-.. Hub

40

643020361

643020361-.. Gear-Sun

41

720886004

720886004-.. Screw

42

720965512

720965512-.. Screw

43

655503680

655503680-.. Planet-Carrier

44

661000290

661000290-.. Bushing

45

680000110

680000110-.. Spring

49

650001662

650001662-.. Housing

5

710317007

710317007-.. Seal Ring

51

660800160

660800160-.. Ring

52

635060071

635060071-.. Piston

53

660300171

660300171-.. Disc. Pushing

54

715303259

715303259-.. O-Ring

55

718299063

718299063-.. Ring-Elastic

56

718415003

718415003-.. Plug

57

715303327

715303327-.. O-Ring

58

682500280

682500280-.. Plug

6

722361003

722361003-.. Bearing

7

6620903200

6620903200-.. Spacer

8

662002210

662002210-.. Spacer

9

680900090

680900090-.. Synt. Disc

K

279970070

279970070-Kit-Bearing Brake

K46

722369022

722369022-.. Ring-Spiral

K47

722369004

722369004-.. Ring-Spiral

K48

715307243

715307243-.. O-Ring

K50

715307256

715307256-.. O-Ring

S

280007526

280007526-Assy-1st, Red

S

280007268

280007268-Assy-2nd, Red

S

280007064

280007064-Assy-3rd, Red

S

280004740

280004740-Assy-Bearing

S

237176010

237176010-Set-Cover

Выбрано товаров: 65