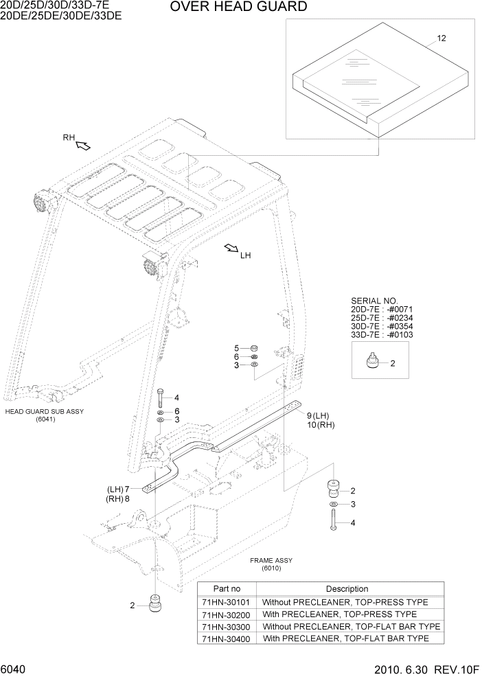
Запчасти Hyundai 20/25/30/33D-7E PAGE 6040 OVER HEAD GUARD СТРУКТУРА

Схема запчастей Hyundai 20/25/30/33D-7E - PAGE 6040 OVER HEAD GUARD СТРУКТУРА
FIT
1:1
100%

Артикул

Название

Примечание

Количество

2

11S1-3016

RUBBER-MOUNT

#0071

4шт.

2

71HN-30500

RUBBER-MOUNT

20D-7E #0072

4шт.

2

11S1-3016

RUBBER-MOUNT

#0234

4шт.

2

71HN-30500

RUBBER-MOUNT

25D-7E #0235

4шт.

2

11S1-3016

RUBBER-MOUNT

#0354

4шт.

2

71HN-30500

RUBBER-MOUNT

30D-7E #0355

4шт.

2

11S1-3016

RUBBER-MOUNT

#0103

4шт.

2

71HN-30500

RUBBER-MOUNT

33D-7E #0104

4шт.

3

51FA-90100-DA

WASHER-MOUNT

6шт.

4

S017-120906

BOLT-HEX

4шт.

5

S275-120006

NUT-SELF LOCKING

2шт.

6

S411-120006

WASHER-SPRING

4шт.

7

71HA-30061

SPONGE-STEP,LH

1шт.

8

71HA-30071

SPONGE-STEP,RH

1шт.

9

71HA-30081

SPONGE-LH

1шт.

10

71HA-30091

SPONGE-RH

1шт.

12

71FG-35000

RAIN COVER

OPTION

1шт.

Выбрано товаров: 17