Запчасти Hyundai 35/40/45D-7 PAGE 3A30 MAIN CONTROL VALVE(3-SPOOL) ГИДРАВЛИЧЕСКАЯ СИСТЕМА

Схема запчастей Hyundai 35/40/45D-7 - PAGE 3A30 MAIN CONTROL VALVE(3-SPOOL) ГИДРАВЛИЧЕСКАЯ СИСТЕМА
FIT
1:1
100%

Артикул

Название

Примечание

Количество

*

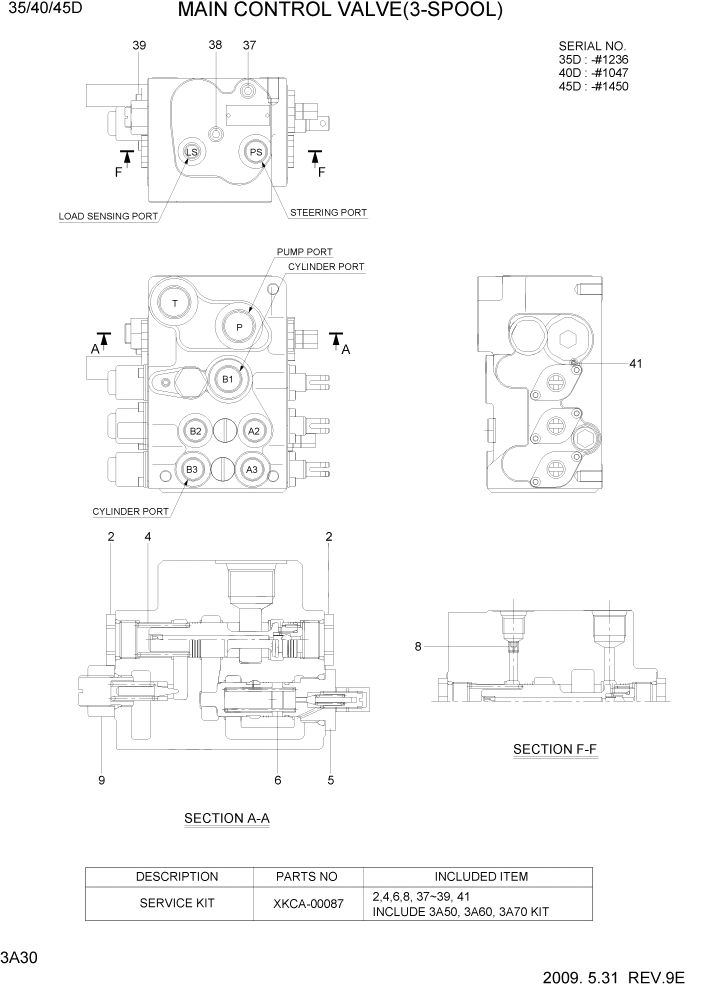
32FV-02000

MAIN CONTROL VALVE

35D #1236

1шт.

*

32FV-02000

MAIN CONTROL VALVE

40D #1047

1шт.

*

32FV-02000

MAIN CONTROL VALVE

45D #1450

1шт.

K2

XKCA-00016

PLUG ASSY

2шт.

K4

XKCA-00023

SPRING-FV

1шт.

5

XKCA-00014

VALVE SEAT ASSY

1шт.

K6

XKCA-00024

SPRING-UNLOADING

1шт.

K8

XKCA-00025

ORIFICE

1шт.

9

XKCA-00020

STEER RELIEF V/V ASSY

1шт.

K37

XKCA-00040

PLUG

1шт.

K38

XKCA-00041

PLUG

1шт.

K39

XKCA-00048

BOLT

2шт.

K41

XKCA-00044

PLUG

1шт.

K

XKCA-00087

SERVICE KIT

SEE ILLUST

1шт.

Выбрано товаров: 14