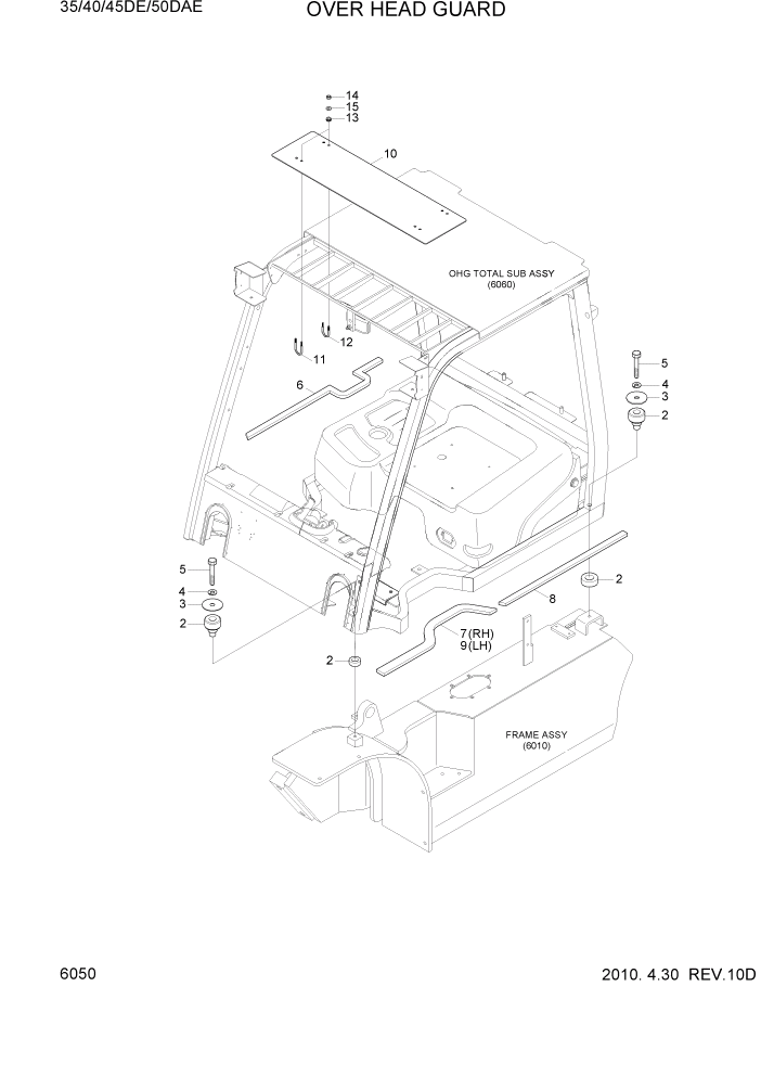
Запчасти Hyundai 35DE/40DE/45DE-7/50D-7AE PAGE 6050 OVER HEAD GUARD СТРУКТУРА

Схема запчастей Hyundai 35DE/40DE/45DE-7/50D-7AE - PAGE 6050 OVER HEAD GUARD СТРУКТУРА
FIT
1:1
100%

Артикул

Название

Примечание

Количество

2

11S1-3016

RUBBER-MOUNT

4шт.

3

51FA-90100

WASHER-MOUNT

4шт.

4

S411-120006

WASHER-SPRING

4шт.

5

S017-120856

BOLT-HEX

4шт.

6

71FV-35391

SPONGE-RH

1шт.

7

71FV-35380

SPONGE-RH

1шт.

8

71FV-35410

SPONGE-LH

1шт.

9

71FV-35400

SPONGE-LH

1шт.

10

71HL-31030

PC BOARD

OPTION

1шт.

11

71HL-31040

U-BOLT

OPTION

2шт.

12

71HD-32230

U-BOLT

OPTION

2шт.

13

71HJ-40170

RUBBER-CHSHION

OPTION

8шт.

14

S275-060006

NUT-SELF LOCKING

OPTION

8шт.

15

S403-06500B

WASHER-PLAIN

OPTION

8шт.

15

S403-06500B

WASHER-PLAIN

8шт.

Выбрано товаров: 15