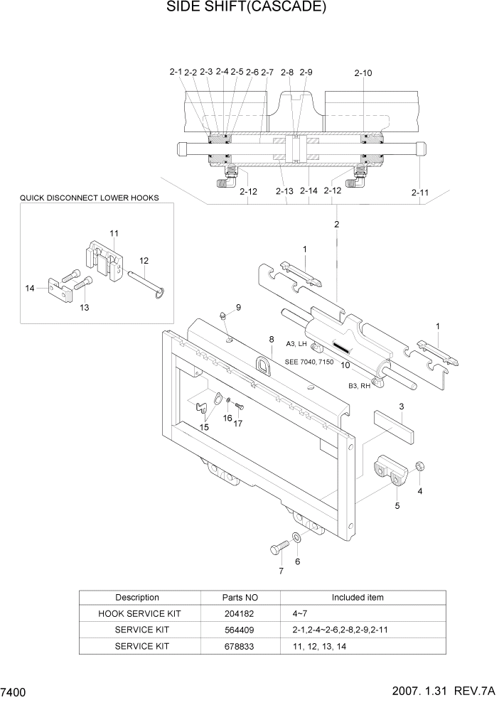
Запчасти Hyundai 35/40/45DS-7 PAGE 7400 SIDE SHIFT(CASCADE) РАБОЧЕЕ ОБОРУДОВАНИЕ

Схема запчастей Hyundai 35/40/45DS-7 - PAGE 7400 SIDE SHIFT(CASCADE) РАБОЧЕЕ ОБОРУДОВАНИЕ
FIT
1:1
100%

Артикул

Название

Примечание

Количество

*

65FE-00100

SIDE SHIFT ASSY(SINGLE)

CLASS III,35-45

1шт.

*

65FE-00110

SIDE SHIFT ASSY(DOUBLE)

CLASS III,35-45

1шт.

*

65FE-10101

SIDE SHIFT ASSY(SINGLE)

CLASS IV,45DS

1шт.

*

65FE-10110

SIDE SHIFT ASSY(DOUBLE)

CLASS IV,45DS

1шт.

1

672018

BEARING-UPPER

STD

2шт.

1

804065

BEARING-UP,BRONZE

OPT

2шт.

2

584003

CYLINDER ASSY

W=1300MM

1шт.

2

584004

CYLINDER ASSY

W=1600MM

1шт.

S2-1

564408

SEAL-WIPER

2шт.

2-2

3154

RING-SNAP

2шт.

2-3

564403

RING-RETAINING

2шт.

S2-4

615131

RING-BACK UP

2шт.

S2-5

2789

O-RING

2шт.

S2-6

564406

SEAL-ROD

2шт.

2-7

564401

ROD/PISTON ASSY

1шт.

S2-8

564404

RING-BEARING

2шт.

S2-9

564407

SEAL-PISTON

1шт.

2-1

564402

RETAINER

1шт.

S2-11

@

ROD ENE CAP

NOT

ARшт.

2-12

564226

WASHER-SPEED CNTL

2шт.

2-13

@

SPACER

NOT

ARшт.

2-14

@

SHELL-CYLINDER

NOT

1шт.

3

208350

BEARING-LOWER

2шт.

K4

553857

NUT

4шт.

K5

204186

HOOK-LOWER

STD

2шт.

K5

225570

HOOK-LOWER/BRONZE

OPT

2шт.

K6

667225

WASHER

4шт.

K7

639121

SCREW-CAP

4шт.

N8

@

FRAME

NOT

1шт.

9

7403

NIPPLE-GREASE

ARшт.

N10

601676

FITTING-90

NOT

2шт.

S11

675957

HOOK-QD

2шт.

S12

678832

PIN-QD HOOK

2шт.

S13

779019

SCREW-CAP

4шт.

NS14

675958

GUIDE

NOT

2шт.

15

208355

RETAINER

2шт.

16

202346

WASHER

2шт.

17

763169

SCREW-CAP

2шт.

K

204182

HOOK SERVICE KIT

SEE ILLUST

1шт.

S

564409

SERVICE KIT

SEE ILLUST

1шт.

S

678833

SERVICE KIT

SEE ILLUST #0001

1шт.

N

@

NOT INDIVIDUALLY SUPPLIED

NOT

ARшт.

Выбрано товаров: 42