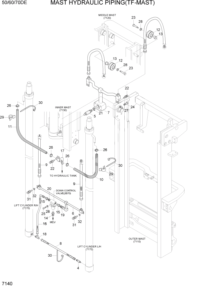
Запчасти Hyundai 50/60/70DE PAGE 7140 MAST HYDRAULIC PIPING(TF-MAST) РАБОЧЕЕ ОБОРУДОВАНИЕ

Схема запчастей Hyundai 50/60/70DE - PAGE 7140 MAST HYDRAULIC PIPING(TF-MAST) РАБОЧЕЕ ОБОРУДОВАНИЕ
FIT
1:1
100%

Артикул

Название

Примечание

Количество

4

33FV-06000

VALVE-VELOCITY FUSE

1шт.

5

33FF-06000

DOWN SAFETY VALVE

1шт.

6

33FQ-80300

PIPE WA

1шт.

7

33FQ-80071

PIPE WA

1шт.

8

33FQ-00010

HOSE ASSY-ORFS 0X0

1шт.

9

P910-104056

HOSE ASSY-ORFS 0X0

TF450

2шт.

9

P910-104064

HOSE ASSY-ORFS 0X0

TF500

2шт.

9

P910-104072

HOSE ASSY-ORFS 0X0

TF560

2шт.

9

P910-104080

HOSE ASSY-ORFS 0X0

TF600

2шт.

10

31FF-81140

HOSE-RUBBER

TF450

1шт.

10

31FF-81170

HOSE-RUBBER

TF500

1шт.

10

31FF-81210

HOSE-RUBBER

TF560

1шт.

10

31FF-81240

HOSE-RUBBER

TF600

1шт.

11

31FF-81230

HOSE-RUBBER

TF450

1шт.

11

31FF-81260

HOSE-RUBBER

TF500

1шт.

11

31FF-81300

HOSE-RUBBER

TF560

1шт.

11

31FF-81330

HOSE-RUBBER

TF600

1шт.

12

33HH-80500

PULLEY-HOSE

2шт.

13

31FV-90300

PIN-HOSE PULLEY

2шт.

14

31FQ-80180

CONNECTOR

1шт.

15

X500-310005

CONNECTOR-ORFS

2шт.

16

31FQ-80160

HOSE ASSY-ORFS

1шт.

17

31FQ-80010

TEE-RETURN

1шт.

18

31FQ-80300

TEE

1шт.

19

S621-021001

O-RING

1шт.

20

S611-030001

O-RING

1шт.

21

Y172-003004

O-RING

1шт.

22

S037-102026

BOLT-W/WASHER

3шт.

23

S017-120606

BOLT-HEX

2шт.

24

S017-100756

BOLT-HEX

4шт.

25

S017-120756

BOLT-HEX

2шт.

26

33HA-83400

HOSE CLIP

4шт.

27

S411-100006

WASHER-SPRING

4шт.

28

S441-120006

WASHER-HARDENED

2шт.

29

31FB-80080

CLAMP-HOSE

6шт.

30

S552-102370

CLAMP-BAND

8шт.

31

S035-102512

BOLT-W/WASHER

2шт.

32

232110000

WASHER

2шт.

Выбрано товаров: 38