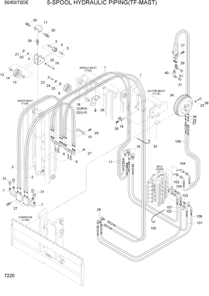
Запчасти Hyundai 50/60/70DE PAGE 7220 5-SPOOL HYDRAULIC PIPING(TF-MAST) РАБОЧЕЕ ОБОРУДОВАНИЕ

Схема запчастей Hyundai 50/60/70DE - PAGE 7220 5-SPOOL HYDRAULIC PIPING(TF-MAST) РАБОЧЕЕ ОБОРУДОВАНИЕ
FIT
1:1
100%

Артикул

Название

Примечание

Количество

1

P910-064073

HOSE ASSY-ORFS 0X0

TF450

4шт.

1

P910-064081

HOSE ASSY-ORFS 0X0

TF500

4шт.

1

P910-064088

HOSE ASSY-ORFS 0X0

TF560

4шт.

1

P910-064096

HOSE ASSY-ORFS 0X0

TF600

4шт.

2

P910-064045

HOSE ASSY-ORFS 0X0

TF450

4шт.

2

P910-064049

HOSE ASSY-ORFS 0X0

TF500

4шт.

2

P910-064052

HOSE ASSY-ORFS 0X0

TF560

4шт.

2

P910-064056

HOSE ASSY-ORFS 0X0

TF600

4шт.

3

33FQ-90020

BRACKET WA

1шт.

4

33FQ-90360

PULLEY-HOSE

1шт.

5

33FQ-90320

PIN-H/PULLEY

2шт.

6

33FQ-90060

PIPE-WA

2шт.

7

34FG-90400

BLOCK WA

2шт.

8

34FG-90201

PULLEY-HOSE

2шт.

9

34FG-90250

PIN-HOSE PULLEY

2шт.

10

34FG-90460

CLAMP-HOSE

2шт.

11

34FG-90270

COVER

1шт.

12

31FF-90010

PLATE-RH

1шт.

13

34FG-90351

PIN-HOSE PULLEY

2шт.

14

33HD-90370

PULLEY-HOSE

1шт.

15

34FG-90260

CLAMP-HOSE

2шт.

16

31FS-90500

ELBOW WA

2шт.

17

31FG-80430-DA

NUT-HEX

2шт.

18

31FV-90130

PIN-HOSE PULLEY

2шт.

19

S017-101356

BOLT-HEX

2шт.

20

S411-100006

WASHER-SPRING

2шт.

21

S275-100002

NUT-SELF LOCKING

2шт.

22

S403-102006

WASHER-PLAIN

2шт.

23

S017-120606

BOLT-HEX

2шт.

24

S411-120006

WASHER-SPRING

2шт.

25

S441-120006

WASHER-HARDENED

4шт.

26

S037-123026

BOLT-W/WASHER

4шт.

27

S037-102526

BOLT-W/WASHER

10шт.

28

31HN-90500

ELBOW-90,ORFS

2шт.

29

S035-063526

BOLT-W/WASHER

4шт.

30

S035-081526

BOLT-W/WASHER

2шт.

31

X710-100103

CAP-HYD,ORFS

6шт.

32

S552-050203

CLAMP-BAND

10шт.

33

33FF-90030

PLATE-LH

1шт.

34

6600363600

HOSE REEL-RH

1шт.

35

X500-310002

CONNECTOR-ORFS

2шт.

36

S611-012001

O-RING

2шт.

37

S621-012001

O-RING

2шт.

38

S017-120802

BOLT-HEX

2шт.

39

33FJ-80170

ELBOW-90

1шт.

39

33FJ-80170

ELBOW-90

1шт.

40

33FJ-80180

ELBOW-90,LONG

1шт.

101

P933-064022

HOSE ASSY-ORFS 0X90

1шт.

102

P933-064024

HOSE ASSY-ORFS 0X90

1шт.

103

31FQ-80130

CONNECTOR-ORFS

2шт.

104

31FQ-80140

CONNECTOR-LONG

3шт.

105

S552-050203

CLAMP-BAND

3шт.

106

P933-064023

HOSE ASSY-ORFS 0X90

1шт.

107

P933-064025

HOSE ASSY-ORFS 0X90

1шт.

108

P933-064056

HOSE ASSY-ORFS 0X90

TF450

2шт.

108

P933-064060

HOSE ASSY-ORFS 0X90

TF500

2шт.

108

P933-064064

HOSE ASSY-ORFS 0X90

TF560

2шт.

108

P933-064068

HOSE ASSY-ORFS 0X90

TF600

2шт.

Выбрано товаров: 58