Запчасти Hyundai 50/60/70DE PAGE 3050 MAIN HYDRAULIC PIPING ГИДРАВЛИЧЕСКАЯ СИСТЕМА

Схема запчастей Hyundai 50/60/70DE - PAGE 3050 MAIN HYDRAULIC PIPING ГИДРАВЛИЧЕСКАЯ СИСТЕМА
FIT
1:1
100%

Артикул

Название

Примечание

Количество

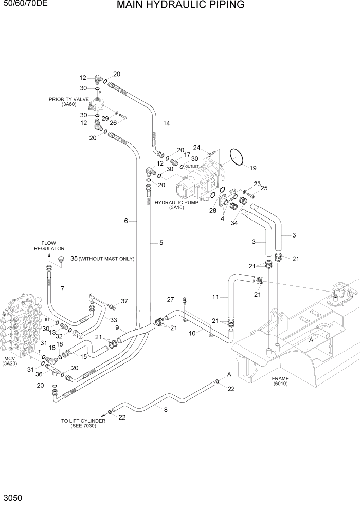
3

31FQ-20242

HOSE-SUCTION

2шт.

4

31FQ-20190

PIPE-SUCTION

2шт.

5

P930-124013

HOSE ASSY-ORFS 0X90

1шт.

6

P910-124012

HOSE ASSY-ORFS 0X0

1шт.

7

P923-164028

HOSE ASSY-ORFS 0X45

1шт.

8

37FQ-20101

HOSE-RETURN

#0008

1шт.

8

37FQ-20102

HOSE-RETURN

50DE #0009

1шт.

8

37FQ-20102

HOSE-RETURN

60DE

1шт.

8

37FQ-20101

HOSE-RETURN

#0045

1шт.

8

37FQ-20102

HOSE-RETURN

70DE #0046

1шт.

9

P760-063042

HOSE-RUBBER LOW

1шт.

10

31FQ-20291

PIPE-RETURN

1шт.

11

31FQ-20311

HOSE-RETURN

1шт.

12

31LF-30080

ELBOW-90

3шт.

13

31FQ-20110

CONNECTOR

1шт.

14

P920-124009

HOSE ASSY-ORFS 0X45

50/60DE

1шт.

14

P910-124011

HOSE ASSY-ORFS 0X0

#0011

1шт.

14

P920-124009

HOSE ASSY-ORFS 0X45

70DE #0012

1шт.

15

31FQ-20300

PIPE WA-RETURN

1шт.

16

37FQ-20050

ELBOW-90,ORFS

1шт.

17

31S7-00440

CONNECTOR

50/60DE

1шт.

17

X500-310004

CONNECTOR-ORFS

#0011

1шт.

17

31S7-00440

CONNECTOR

70DE #0012

1шт.

18

S621-025001

O-RING

1шт.

19

S632-130001

O-RING

1шт.

20

S621-018001

O-RING

6шт.

21

S572-570006

CLAMP-HOSE,WIRE TYPE

12шт.

22

S572-320006

CLAMP-HOSE,WIRE TYPE

2шт.

23

S411-100006

WASHER-SPRING

8шт.

24

S017-16035D

BOLT-HEX

2шт.

25

S109-100306

BOLT-SOCKET

8шт.

26

S015-080656

BOLT-HEX

2шт.

27

S035-082026

BOLT-W/WASHER

2шт.

28

S632-035001

O-RING

2шт.

29

S411-080006

WASHER-SPRING

2шт.

30

S611-023001

O-RING

5шт.

31

S611-030001

O-RING

2шт.

32

S621-021001

O-RING

1шт.

33

31FQ-20440

PIPE WA

1шт.

34

S572-530006

CLAMP-HOSE,WIRE TYPE

4шт.

35

X700-100106

PLUG-ORFS

WITHOUT MAST

1шт.

36

31FQ-20410

TEE

1шт.

37

S037-103026

BOLT-W/WASHER

50/60DE

1шт.

37

S037-102026

BOLT-W/WASHER

#0011

1шт.

37

S037-103026

BOLT-W/WASHER

70DE #0012

1шт.

Выбрано товаров: 45