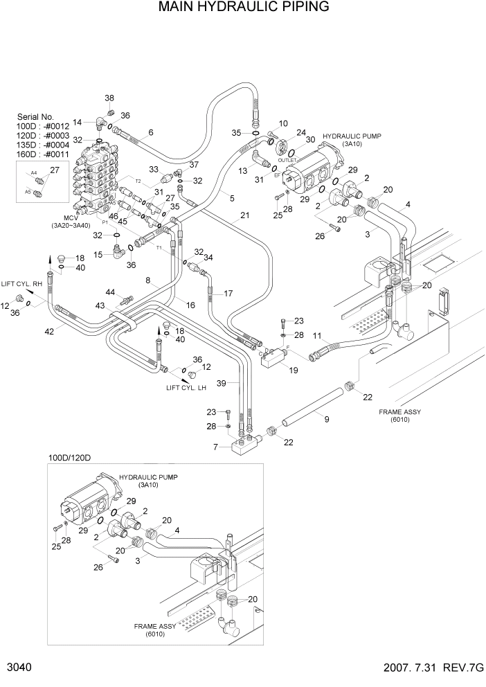
Запчасти Hyundai 100/120/130/160D-7 PAGE 3040 MAIN HYDRAULIC PIPING ГИДРАВЛИЧЕСКАЯ СИСТЕМА

Схема запчастей Hyundai 100/120/130/160D-7 - PAGE 3040 MAIN HYDRAULIC PIPING ГИДРАВЛИЧЕСКАЯ СИСТЕМА
FIT
1:1
100%

Артикул

Название

Примечание

Количество

2

31FT-20011

PIPE

2шт.

3

31FT-20112

HOSE-SUCTION

100D/120D

1шт.

3

31FT-20021

HOSE-SUCTION

135D/160D

1шт.

4

31FT-20122

HOSE-SUCTION

100D/120D

1шт.

4

31FT-20031

HOSE-SUCTION

135D/160D

1шт.

5

P950-204312

HOSE ASSY

100D/120D

1шт.

5

P950-204320

HOSE ASSY

135D/160D

1шт.

6

P920-124007

HOSE ASSY-ORFS 0X45

100D/120D, 2SP

1шт.

6

P920-124008

HOSE ASSY-ORFS 0X45

100D/120D, 3SP

1шт.

6

P920-124009

HOSE ASSY-ORFS 0X45

100D/120D, 4SP

1шт.

6

P920-124010

HOSE ASSY-ORFS 0X45

100D/120D, 5SP

1шт.

6

P910-124012

HOSE ASSY-ORFS 0X0

135D/160D, 2SP

1шт.

6

P910-124013

HOSE ASSY-ORFS 0X0

135D/160D, 3SP

1шт.

6

P910-124014

HOSE ASSY-ORFS 0X0

135D/160D, 4SP

1шт.

6

P910-124015

HOSE ASSY-ORFS 0X0

135D/160D, 5SP

1шт.

7

31FT-20340

BLOCK-WA

100D #0012

1шт.

7

31FT-20341

BLOCK-WA

100D #0013

1шт.

7

31FT-20340

BLOCK-WA

120D #0003

1шт.

7

31FT-20341

BLOCK-WA

120D #0004

1шт.

7

31FT-20340

BLOCK-WA

135D #0004

1шт.

7

31FT-20341

BLOCK-WA

135D #0005

1шт.

7

31FT-20340

BLOCK-WA

160D #0011

1шт.

7

31FT-20341

BLOCK-WA

160D #0012

1шт.

8

P923-124026

HOSE ASSY-ORFS 0X45

100D/120D,SIM

1шт.

8

P923-124027

HOSE ASSY-ORFS 0X45

100D,TRIPLEX #0013

1шт.

8

P923-124027

HOSE ASSY-ORFS 0X45

120D,TRIPLEX #0004

1шт.

8

P923-124028

HOSE ASSY-ORFS 0X45

135D/160D,SIM

1шт.

8

P923-124029

HOSE ASSY-ORFS 0X45

135D,TRIPLEX #0005

1шт.

8

P923-124029

HOSE ASSY-ORFS 0X45

160D,TRIPLEX #0012

1шт.

9

P760-053050

HOSE-RUBBER LOW

1шт.

10

S109-100356

BOLT-SOCKET

4шт.

11

31FT-20330

HOSE ASSY-THD

1шт.

12

X700-100106

PLUG-ORFS

1шт.

13

31S7-00470

ELBOW-90

100D #0012

1шт.

13

31FT-20380

ELBOW-90

100D #0013

1шт.

13

31S7-00470

ELBOW-90

120D #0003

1шт.

13

31FT-20380

ELBOW-90

120D #0004

1шт.

13

31S7-00470

ELBOW-90

135D #0004

1шт.

13

31FT-20380

ELBOW-90

135D #0005

1шт.

13

31S7-00470

ELBOW-90

160D #0011

1шт.

13

31FT-20380

ELBOW-90

160D #0012

1шт.

14

31FT-20321

ELBOW-90

1шт.

15

31FT-20240

ELBOW-90

1шт.

16

P923-124027

HOSE ASSY-ORFS 0X45

100D/120D,SIM

1шт.

16

P923-124028

HOSE ASSY-ORFS 0X45

100D,TRIPLEX #0013

1шт.

16

P923-124028

HOSE ASSY-ORFS 0X45

120D,TRIPLEX #0004

1шт.

16

P923-124029

HOSE ASSY-ORFS 0X45

135D/160D

1шт.

16

P923-124030

HOSE ASSY-ORFS 0X45

135D,TRIPLEX #0005

1шт.

16

P923-124030

HOSE ASSY-ORFS 0X45

160D,TRIPLEX #0012

1шт.

17

P620-161019

HOSE ASSY-THD 0X90

1шт.

18

31EM-22110

PLUG-PF

1шт.

19

31FT-20231

BLOCK WA

100D #0012

1шт.

19

31FT-20232

BLOCK WA

100D #0013

1шт.

19

31FT-20231

BLOCK WA

120D #0003

1шт.

19

31FT-20232

BLOCK WA

120D #0004

1шт.

19

31FT-20231

BLOCK WA

135D #0004

1шт.

19

31FT-20232

BLOCK WA

135D #0005

1шт.

19

31FT-20231

BLOCK WA

160D #0011

1шт.

19

31FT-20232

BLOCK WA

160D #0012

1шт.

20

S572-590006

CLAMP-HOSE WIRE TYPE

8шт.

21

P620-161020

HOSE ASSY-THD 0X90

1шт.

22

S572-450006

CLAMP-HOSE

4шт.

23

S017-120752

BOLT-HEXAGON HEAD

4шт.

24

P173-200106

FLANGE-SPLIT

2шт.

25

S017-120356

BOLT-HEX

4шт.

26

S109-120456

BOLT-SOCKET

8шт.

27

31FT-20350

ELBOW-90

100D,SIMPLEX #0012

2шт.

27

31FT-20351

TEE

100D,SIMPLEX #0013

2шт.

27

31FT-20350

ELBOW-90

120D,SIMPLEX #0003

2шт.

27

31FT-20351

TEE

120D,SIMPLEX #0004

2шт.

27

31FT-20350

ELBOW-90

135D,SIMPLEX #0004

2шт.

27

31FT-20351

TEE

135D,SIMPLEX #0005

2шт.

27

31FT-20350

ELBOW-90

160D,SIMPLEX #0011

2шт.

27

31FT-20351

TEE

160D,SIMPLEX #0012

2шт.

27

31FT-20360

TEE

100D,TRIPLEX #0013

2шт.

27

31FT-20360

TEE

120D,TRIPLEX #0004

2шт.

27

31FT-20360

TEE

135D,TRIPLEX #0005

2шт.

27

31FT-20360

TEE

160D,TRIPLEX #0012

2шт.

28

S411-120006

WASHER-SPRING

6шт.

29

Y172-003004

O-RING(AN ??)

2шт.

30

Y171-027004

O-RING

1шт.

31

S611-023001

O-RING(INCH)

3шт.

32

S611-030001

O-RING

4шт.

33

P105-117165

CONNECTOR-LONG

100D #0012

1шт.

33

31FT-20400

CONNECTOR

100D #0013

1шт.

33

P105-117165

CONNECTOR-LONG

120D #0003

1шт.

33

31FT-20400

CONNECTOR

120D #0004

1шт.

33

P105-117165

CONNECTOR-LONG

135D #0004

1шт.

33

31FT-20400

CONNECTOR

135D #0005

1шт.

33

P105-117165

CONNECTOR-LONG

160D #0011

1шт.

33

31FT-20400

CONNECTOR

160D #0012

1шт.

34

P105-117163

CONNECTOR-LONG

100D #0012

1шт.

34

31FT-20390

CONNECTOR

100D #0013

1шт.

34

P105-117163

CONNECTOR-LONG

120D #0003

1шт.

34

31FT-20390

CONNECTOR

120D #0004

1шт.

34

P105-117163

CONNECTOR-LONG

135D #0004

1шт.

34

31FT-20390

CONNECTOR

135D #0005

1шт.

34

P105-117163

CONNECTOR-LONG

160D #0011

1шт.

34

31FT-20390

CONNECTOR

160D #0012

1шт.

35

S621-018001

O-RING,ORFS

4шт.

36

S621-021001

O-RING,ORFS

4шт.

37

31EE-90110

ELBOW-90,SWIVEL NUT

1шт.

38

31EK-11130

COUPLING-SCREW

1шт.

39

P603-121029

HOSE ASSY-THD

100D/120D,SIM

1шт.

39

P603-121034

HOSE ASSY-THD

100D,TRIPLEX #0013

1шт.

39

P603-121034

HOSE ASSY-THD

120D,TRIPLEX #0004

1шт.

39

P603-121032

HOSE ASSY-THD

135D/160D,SIM

1шт.

39

P603-121037

HOSE ASSY-THD

135D,TRIPLEX #0005

1шт.

39

P603-121037

HOSE ASSY-THD

160D,TRIPLEX #0012

1шт.

40

S631-024004

O-RING

1шт.

41

P910-084009

HOSE ASSY-ORFS 0X0

1шт.

42

P603-121030

HOSE ASSY-THD

100D/120D,SIM

1шт.

42

P603-121035

HOSE ASSY-THD

100D,TRIPLEX #0013

1шт.

42

P603-121035

HOSE ASSY-THD

120D,TRIPLEX #0004

1шт.

42

P603-121033

HOSE ASSY-THD

135D/160D,SIM

1шт.

42

P603-121038

HOSE ASSY-THD

135D,TRIPLEX #0005

1шт.

42

P603-121038

HOSE ASSY-THD

160D,TRIPLEX #0012

1шт.

43

31FT-20311

GUIDE-HOSE

1шт.

44

S037-102526

BOLT-W/WASHER

2шт.

45

31FT-20371

CONNECTOR

100D,TRIPLEX #0013

2шт.

45

31FT-20371

CONNECTOR

120D,TRIPLEX #0004

2шт.

45

31FT-20371

CONNECTOR

135D,TRIPLEX #0005

2шт.

45

31FT-20371

CONNECTOR

160D,TRIPLEX #0012

2шт.

46

31FT-05000

VALVE-DOWN CONTROL

100D,TRIPLEX #0013

2шт.

46

31FT-05000

VALVE-DOWN CONTROL

120D,TRIPLEX #0004

2шт.

46

31FT-05000

VALVE-DOWN CONTROL

135D,TRIPLEX #0005

2шт.

46

31FT-05000

VALVE-DOWN CONTROL

160D,TRIPLEX #0012

2шт.

Выбрано товаров: 127