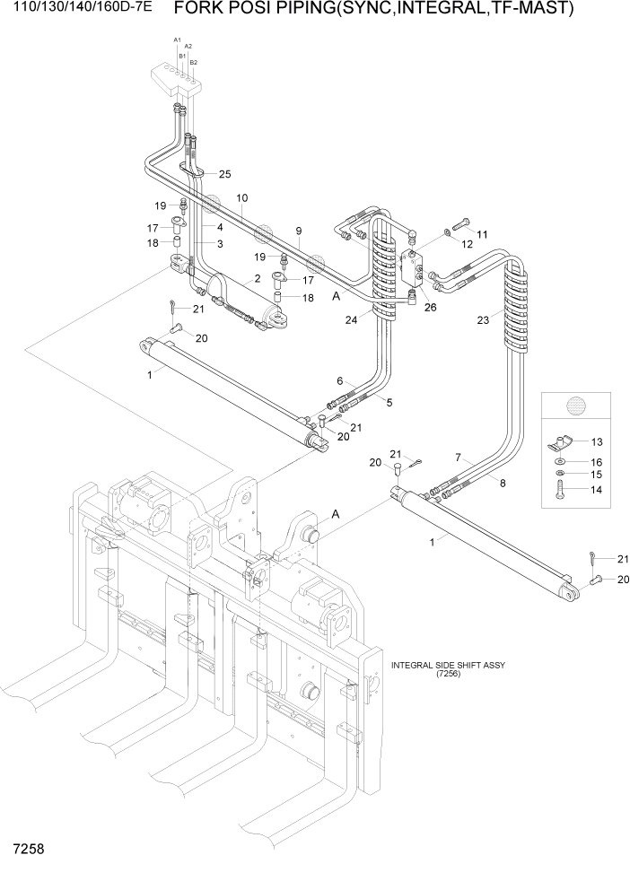
Запчасти Hyundai 110/130/140/160D-7E PAGE 7258 FORK POSI PIPING(SYNC,INTEGRAL,TF-MAST) РАБОЧЕЕ ОБОРУДОВАНИЕ

Схема запчастей Hyundai 110/130/140/160D-7E - PAGE 7258 FORK POSI PIPING(SYNC,INTEGRAL,TF-MAST) РАБОЧЕЕ ОБОРУДОВАНИЕ
FIT
1:1
100%

Артикул

Название

Примечание

Количество

1

34FT-07500

FORK POSITIONER CYL

2шт.

2

34FT-07600

SIDE SHIFT CYLINDER

1шт.

3

P930-064007

HOSE ASSY-ORFS 0X90

1шт.

4

P910-064014

HOSE ASSY-ORFS 0X0

1шт.

5

P930-064015

HOSE ASSY-ORFS 0X90

1шт.

6

P930-064014

HOSE ASSY-ORFS 0X90

1шт.

7

P930-064017

HOSE ASSY-ORFS 0X90

1шт.

8

P930-064016

HOSE ASSY-ORFS 0X90

1шт.

9

34FT-90220

PIPE WA

1шт.

10

34FT-90230

PIPE WA

1шт.

11

S017-100506

BOLT-HEX

2шт.

12

S411-100006

WASHER-SPRING

2шт.

13

31FP-90400

CLAMP WA

6шт.

14

S015-080506

BOLT-HEX

3шт.

15

S411-080006

WASHER-SPRING

3шт.

16

S403-080006

WASHER-PLAIN

3шт.

17

34FT-90140

PIN

2шт.

18

S731-045035

BUSHING-DU

2шт.

19

S037-102526

BOLT-W/WASHER

2шт.

20

31FT-90500

PIN

4шт.

21

S461-630502

PIN-SPLIT

4шт.

23

P753-160014

PROTECT COVER-HOSE

1шт.

24

P753-160011

PROTECT COVER-HOSE

1шт.

25

S552-050203

CLAMP-BAND

5шт.

26

31FT-04600

FORK POSITIONER VALVE

1шт.

Выбрано товаров: 25