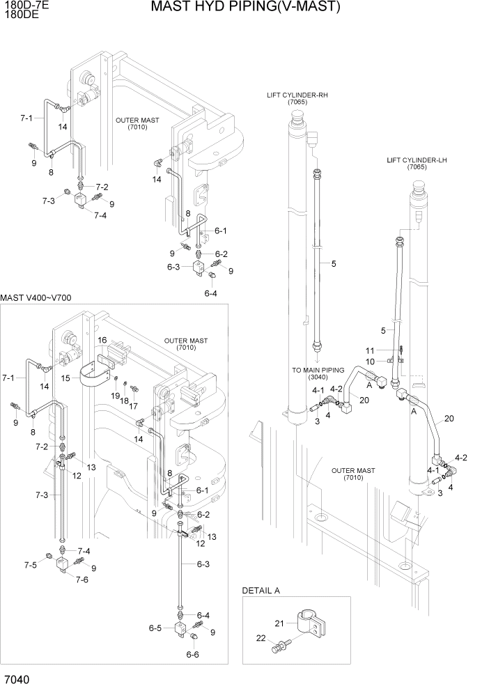
Запчасти Hyundai 180DE PAGE 7040 MAST PIPING(V-MAST) РАБОЧЕЕ ОБОРУДОВАНИЕ

Схема запчастей Hyundai 180DE - PAGE 7040 MAST PIPING(V-MAST) РАБОЧЕЕ ОБОРУДОВАНИЕ
FIT
1:1
100%

Артикул

Название

Примечание

Количество

3

35HS-06500

DOWN SAFETY VALVE

1шт.

4

33FT-80040

ELBOW-90

2шт.

4-1

S631-038004

O-RING

1шт.

4-2

S621-018001

O-RING

1шт.

5

31HS-85010

PIPE WA

V300

2шт.

5

31HS-85020

PIPE WA

V330

2шт.

5

31HS-85030

PIPE WA

V350

2шт.

5

31HS-85040

PIPE WA

V400

2шт.

5

31HS-85050

PIPE WA

V450

2шт.

5

31HS-85060

PIPE WA

V500

2шт.

5

31HS-85070

PIPE WA

V550

2шт.

5

31HS-85080

PIPE WA

V600

2шт.

5

31HS-85090

PIPE WA

V650

2шт.

5

31HS-85100

PIPE WA

V700

2шт.

6

31HS-83011

PIPE ASSY-LH

V300

1шт.

6

31HS-83021

PIPE ASSY-LH

V330

1шт.

6

31HS-83031

PIPE ASSY-LH

V350

1шт.

6-1

31HS-83111

PIPE-LH

V300

1шт.

6-1

31HS-83121

PIPE WA-LH

V330

1шт.

6-1

31HS-83131

PIPE WA-LH

V350

1шт.

6-2

E131-0625

CONNECTOR

1шт.

6-3

31FT-80020

BLOCK WA-LH GREASE

1шт.

6-4

S651-810008

NIPPLE-GREASE

1шт.

6

31HS-83041

PIPE ASSY-LH

V400

1шт.

6

31HS-83051

PIPE ASSY-LH

V450

1шт.

6

31HS-83061

PIPE ASSY-LH

V500

1шт.

6

31HS-83071

PIPE ASSY-LH

V550

1шт.

6

31HS-83081

PIPE ASSY-LH

V600

1шт.

6

31HS-83091

PIPE ASSY-LH

V650

1шт.

6

31HS-83101

PIPE ASSY-LH

V700

1шт.

6-1

31HS-83111

PIPE-LH

1шт.

6-2

31FT-80040

CONNECTOR

1шт.

6-3

31HS-84140

PIPE

V400

1шт.

6-3

31HS-84150

PIPE

V450

1шт.

6-3

31HS-84160

PIPE

V500

1шт.

6-3

31HS-84170

PIPE

V550

1шт.

6-3

31HS-84180

PIPE

V600

1шт.

6-3

31HS-84190

PIPE

V650

1шт.

6-3

31HS-84200

PIPE

V700

1шт.

6-4

E131-0625

CONNECTOR

1шт.

6-5

31FT-80020

BLOCK WA-LH GREASE

1шт.

6-6

S651-810008

NIPPLE-GREASE

1шт.

7

31HS-84011

PIPE ASSY-RH

V300

1шт.

7

31HS-84021

PIPE ASSY-RH

V330

1шт.

7

31HS-84031

PIPE ASSY-RH

V350

1шт.

7-1

31HS-84111

PIPE-RH

V300

1шт.

7-1

31HS-84121

PIPE WA-RH

V330

1шт.

7-1

31HS-84131

PIPE WA-RH

V350

1шт.

7-2

E131-0625

CONNECTOR

1шт.

7-3

31FT-80030

BLOCK WA-RH GREASE

1шт.

7-4

S651-810008

NIPPLE-GREASE

1шт.

7

31HS-84041

PIPE ASSY-RH

V400

1шт.

7

31HS-84051

PIPE ASSY-RH

V450

1шт.

7

31HS-84061

PIPE ASSY-RH

V500

1шт.

7

31HS-84071

PIPE ASSY-RH

V550

1шт.

7

31HS-84081

PIPE ASSY-RH

V600

1шт.

7

31HS-84091

PIPE ASSY-RH

V650

1шт.

7

31HS-84101

PIPE ASSY-RH

V700

1шт.

7-1

31HS-84111

PIPE-RH

1шт.

7-2

31FT-80040

CONNECTOR

1шт.

7-3

31HS-84140

PIPE

V400

1шт.

7-3

31HS-84150

PIPE

V450

1шт.

7-3

31HS-84160

PIPE

V500

1шт.

7-3

31HS-84170

PIPE

V550

1шт.

7-3

31HS-84180

PIPE

V600

1шт.

7-3

31HS-84190

PIPE

V650

1шт.

7-3

31HS-84200

PIPE

V700

1шт.

7-4

E131-0625

CONNECTOR

1шт.

7-5

31FT-80030

BLOCK WA-RH GREASE

1шт.

7-6

S651-810008

NIPPLE-GREASE

1шт.

8

S543-080002

CLAMP-TUBE

2шт.

9

S035-081526

BOLT-W/WASHER

4шт.

10

31FT-80080

CLAMP-PIPE

2шт.

11

S035-102026

BOLT-W/WASHER

4шт.

12

S543-080002

CLAMP-TUBE

2шт.

13

S035-081526

BOLT-W/WASHER

2шт.

14

31FT-80010

ELBOW

2шт.

20

31HS-80010

PIPE WA

2шт.

20-4

S621-018001

O-RING

NOT SHOWN

1шт.

21

31Q4-50230

CLAMP ASSY-PIPE

4шт.

22

S037-123526

BOLT-W/WASHER

4шт.

Выбрано товаров: 81