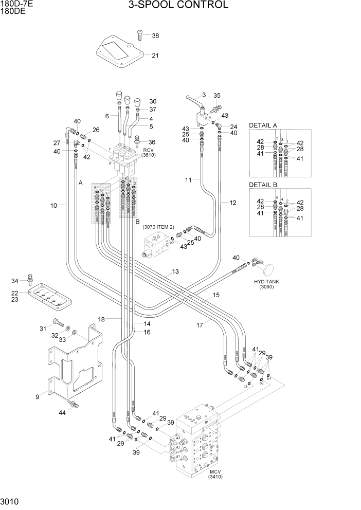
Запчасти Hyundai 180DE PAGE 3010 3-SPOOL CONTROL ГИДРАВЛИЧЕСКАЯ СИСТЕМА

Схема запчастей Hyundai 180DE - PAGE 3010 3-SPOOL CONTROL ГИДРАВЛИЧЕСКАЯ СИСТЕМА
FIT
1:1
100%

Артикул

Название

Примечание

Количество

3

31FT-05300

SOLENOID VALVE ASSY

1шт.

4

31FT-40262

LEVER-LIFT

1шт.

5

31FT-40272

LEVER-TILT

1шт.

6

31FT-40282

LEVER-ATTACH1

1шт.

9

31HS-40011

PLATE-MCV MOUNT

1шт.

10

P930-061074

HOSE ASSY-ORFS,THD(0X90)

1шт.

11

P920-062059

HOSE ASSY-ORFS 0X45

1шт.

12

P910-062009

HOSE ASSY-ORFS 0X0

1шт.

13

P930-042030

HOSE ASSY-ORFS 0X90

1шт.

14

P930-042031

HOSE ASSY-ORFS 0X90

1шт.

15

P930-042028

HOSE ASSY-ORFS 0X90

1шт.

16

P930-042030

HOSE ASSY-ORFS 0X90

1шт.

17

P930-042026

HOSE ASSY-ORFS 0X90

1шт.

18

P930-042028

HOSE ASSY-ORFS 0X90

1шт.

21

31FT-45420

COVER-RCV

1шт.

22

31FT-40240

BRACKET

1шт.

23

31FT-40093

RUBBER

1шт.

24

X520-110002

ELBOW-90,ORFS

1шт.

25

X500-110002

CONNECTOR-ORFS

2шт.

26

31FT-40330

CONNECTOR

1шт.

27

31FT-40251

ELBOW-90

1шт.

28

X500-310001

CONNECTOR-ORFS

6шт.

29

31FT-40350

CONNECTOR

6шт.

30

31FT-40700

KNOB-HCR

3шт.

31

S017-160356

BOLT-HEX

3шт.

32

S411-160006

WASHER-SPRING

3шт.

33

S403-161006

WASHER-PLAIN

3шт.

34

S035-082526

BOLT-W/WASHER

4шт.

35

S035-084026

BOLT-W/WASHER

2шт.

36

S035-062022

BOLT-W/WASHER

4шт.

37

S206-121006

NUT-HEX

3шт.

38

S161-060106

SCREW-CROSS R/ROUND

4шт.

39

S611-012001

O-RING

8шт.

40

S621-012001

O-RING

6шт.

41

S621-011001

O-RING

16шт.

42

S611-009001

O-RING

10шт.

43

S631-014004

O-RING

10шт.

44

S037-123026

BOLT-W/WASHER

6шт.

Выбрано товаров: 38