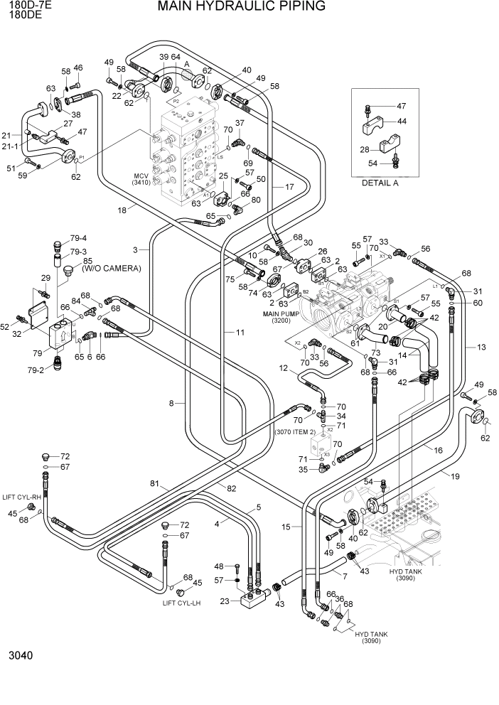
Запчасти Hyundai 180DE PAGE 3040 MAIN HYDRAULIC PIPING ГИДРАВЛИЧЕСКАЯ СИСТЕМА

Схема запчастей Hyundai 180DE - PAGE 3040 MAIN HYDRAULIC PIPING ГИДРАВЛИЧЕСКАЯ СИСТЕМА
FIT
1:1
100%

Артикул

Название

Примечание

Количество

2

35HS-09000

CHECK VALVE

2шт.

3

P920-167009

HOSE ASSY-ORFS,THD(0X45)

1шт.

4

P603-121032

HOSE ASSY-THD

1шт.

5

P603-121033

HOSE ASSY-THD

1шт.

6

X530-110005

ELBOW-45,ORFS

1шт.

7

P760-053052

HOSE-RUBBER LOW

1шт.

8

P700-201313

HOSE ASSY-FLG(0X90)

1шт.

10

S109-100856

BOLT-SOCKET

4шт.

11

P930-047020

HOSE ASSY-ORFS 0X90

1шт.

12

P930-047013

HOSE ASSY-ORFS 0X90

1шт.

13

P910-047021

HOSE ASSY-ORFS,THD(0X0)

1шт.

14

31HS-20131

SUCTION HOSE

2шт.

15

P920-121012

HOSE ASSY-ORFS 0X45

1шт.

16

P920-121015

HOSE ASSY-ORFS 0X45

1шт.

17

P983-127424

HOSE ASSY-ORFS,FLG(0X90)

1шт.

17

P983-127425

HOSE ASSY-ORFS,FLG(0X90)

1шт.

17

P983-127426

HOSE ASSY-ORFS,FLG(0X90)

1шт.

18

31HS-20310

HOSE ASSY-FLG(0X45)

1шт.

19

31HS-20021

PIPE WA

1шт.

20

31HS-20121

PIPE WA

1шт.

21

31HS-40020

PIPE WA

1шт.

22

31HS-40031

PIPE WA

1шт.

23

31FT-20341

BLOCK-WA

1шт.

25

31HS-70200

BLOCK

1шт.

26

31HS-20090

BLOCK

1шт.

27

31L7-40260

CLAMP

1шт.

28

31HS-20030

BRACKET

1шт.

29

S037-102026

BOLT-W/WASHER

2шт.

30

X530-110004

ELBOW-45,ORFS

1шт.

31

31LG-30100

ELBOW-90

2шт.

32

31HS-20470

PLATE

1шт.

33

31FG-10020

ELBOW-90

2шт.

34

X820-065151

TEE-R/TYPE,ORFS

1шт.

35

X520-110012

ELBOW-90,ORFS

1шт.

36

X500-110019

CONNECTOR-ORFS

2шт.

37

X520-310001

ELBOW-90,ORFS

1шт.

38

P174-160104

FLANGE-SPLIT

2шт.

39

P174-120102

FLANGE-HYD,SPLIT

2шт.

40

P173-200106

FLANGE-HYD,SPLIT

4шт.

42

S572-730006

CLAMP-HOSE,WIRE TYPE

8шт.

43

S572-450006

CLAMP-HOSE,WIRE TYPE

4шт.

44

31L7-00240

CLAMP

1шт.

45

X700-100105

PLUG-ORFS

2шт.

46

S109-100556

BOLT-SOCKET

4шт.

47

S037-125526

BOLT-W/WASHER

4шт.

48

S017-120752

BOLT-HEX

2шт.

49

S109-100356

BOLT-SOCKET

20шт.

50

S109-120406

BOLT-SOCKET

4шт.

51

S109-140456

BOLT-SOCKET

4шт.

52

S037-102056

BOLT-W/WASHER

2шт.

54

S037-124026

BOLT-W/WASHER

4шт.

55

S109-120356

BOLT-SOCKET

12шт.

56

S611-009001

O-RING

2шт.

57

S411-120006

WASHER-SPRING

18шт.

58

S411-100006

WASHER-SPRING

32шт.

59

S411-140006

WASHER-SPRING

4шт.

60

S611-019001

O-RING

2шт.

61

Y172-006004

O-RING

2шт.

62

Y171-027004

O-RING

5шт.

63

Y171-024004

O-RING

6шт.

64

Y171-019004

O-RING

1шт.

65

S621-021001

O-RING

2шт.

66

S631-029004

O-RING

5шт.

67

S631-024004

O-RING

1шт.

68

S621-018001

O-RING

9шт.

69

S611-012001

O-RING

1шт.

70

S621-011001

O-RING

6шт.

71

S631-014004

O-RING

2шт.

72

31EM-22110

PLUG-PF

2шт.

73

31HS-20301

PIPE WA

1шт.

74

P173-160104

FLANGE-HYD,SPLIT

2шт.

75

S109-100756

BOLT-SOCKET

4шт.

79

31HS-20420

DOWN CONTROL VALVE

1шт.

79-2

31HS-20430

PLUG

3шт.

79-3

31FT-05500

VALVE-DOWN CONTROL

2шт.

79-4

31HS-20480

PLUG

1шт.

80

X520-110005

ELBOW-90,ORFS

1шт.

81

P913-127026

HOSE ASSY-ORFS 0X0

1шт.

82

P933-127028

HOSE ASSY-ORFS 0X90

1шт.

84

X820-165454

TEE-R/TYPE,ORFS

1шт.

85

P220-310102

PLUG-HEX

W/O CAMERA

1шт.

Выбрано товаров: 81