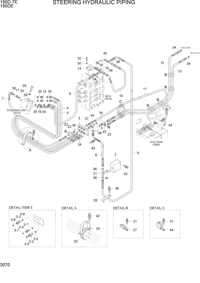
Запчасти Hyundai 180DE PAGE 3070 STEERING HYDRAULIC PIPING ГИДРАВЛИЧЕСКАЯ СИСТЕМА

Схема запчастей Hyundai 180DE - PAGE 3070 STEERING HYDRAULIC PIPING ГИДРАВЛИЧЕСКАЯ СИСТЕМА
FIT
1:1
100%

Артикул

Название

Примечание

Количество

2

31LM-10210

SHUTTLE VALVE

1шт.

3

31HS-10062

TERMINAL ASSY

1шт.

3-2

X540-120003

CONNECTOR-ORFS

4шт.

3-3

X540-120002

CONNECTOR-ORFS

1шт.

3-4

X540-120001

CONNECTOR-ORFS

1шт.

3-5

S621-014001

O-RING

8шт.

3-6

S621-012001

O-RING

2шт.

3-7

S621-011001

O-RING

2шт.

4

P920-085038

HOSE ASSY-ORFS 0X45

2шт.

5

P920-085040

HOSE ASSY-ORFS 0X45

1шт.

6

P920-085029

HOSE ASSY-ORFS,THD(0X45)

1шт.

6

P920-085028

HOSE ASSY-ORFS 0X45

1шт.

6

P920-085027

HOSE ASSY-ORFS,THD(0X45)

1шт.

7

P930-045038

HOSE ASSY-ORFS 0X90

1шт.

8

P920-045009

HOSE ASSY-ORFS,THD(0X45)

1шт.

9

P920-045028

HOSE ASSY-ORFS,THD(0X45)

1шт.

10

P920-045006

HOSE ASSY-ORFS,THD(0X45)

1шт.

11

P930-081025

HOSE ASSY-ORFS 0X90

1шт.

12

31HS-10011

HOSE ASSY-HYD,THD(0X0)

1шт.

13

31HS-10021

HOSE ASSY-HYD,THD(0X0)

1шт.

14

31HS-10030

PIPE WA

1шт.

15

X515-109532

CONNECTOR-LONG,ORFS

2шт.

16

X500-310003

CONNECTOR-ORFS

2шт.

17

X500-310001

CONNECTOR-ORFS

1шт.

18

X840-535351

TEE-R/TYPE,SWIVEL,ORFS

1шт.

19

31HV-10060

TEE-R/TYPE,ORFS

1шт.

21

X810-065151

TEE-B/TYPE,ORFS

1шт.

22

31HV-10050

ADAPTER-SWIVEL

1шт.

23

31EK-11130

COUPLING-SCREW

1шт.

24

31FT-10162

CLAMP-HOSE

1шт.

25

S760-101400

GROMMET

1шт.

27

31L6-02470

CLAMP

4шт.

28

31HA-70130

CLAMP-HOSE

1шт.

29

S017-100856

BOLT-HEX

4шт.

30

S411-100006

WASHER-SPRING

8шт.

31

S037-102026

BOLT-W/WASHER

5шт.

32

S109-100406

BOLT-SOCKET

4шт.

33

S035-084526

BOLT-W/WASHER

2шт.

34

S621-014001

O-RING

15шт.

35

S611-016001

O-RING

4шт.

36

S621-011001

O-RING

10шт.

38

S611-009001

O-RING

1шт.

39

Y171-019004

O-RING

1шт.

40

S611-012001

O-RING

1шт.

41

S631-014004

O-RING

1шт.

42

S037-082026

BOLT-W/WASHER

2шт.

43

S037-102526

BOLT-W/WASHER

2шт.

44

31L7-10270

CLAMP-TUBE

1шт.

45

X840-515151

TEE-R/TYPE,SWIVEL,ORFS

1шт.

46

S035-082036

BOLT-W/WASHER

1шт.

Выбрано товаров: 50