Запчасти Hyundai HDF20/HDF25/HDF30-2 PAGE 2060 CAB ELECTRIC(OPTION) ЭЛЕКТРИЧЕСКАЯ СИСТЕМА

Схема запчастей Hyundai HDF20/HDF25/HDF30-2 - PAGE 2060 CAB ELECTRIC(OPTION) ЭЛЕКТРИЧЕСКАЯ СИСТЕМА
FIT
1:1
100%

Артикул

Название

Примечание

Количество

*

@

CABIN HARNESS

NOT #2322

1шт.

*

@

CABIN HARNESS

NOT #2864

1шт.

*

@

CABIN HARNESS

NOT #3007

1шт.

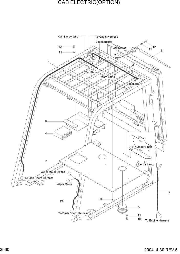
1

F12800131

HARNESS-CAB

1шт.

2

F12800150

HARNESS-LICENSE

1шт.

3

F12800161

WIRE-CAR STEREO

1шт.

4

E30890010

CAR STEREO

H-700/12V

1шт.

5

340008410

CAR SPEAKER

2шт.

6

E19890050

ANTENNA

1шт.

7

SCA300010

PANEL-INNER

1шт.

8

SCA300020

BRACKET-STEREO

1шт.

9

SCA300030

CLIP

6шт.

10

20C104020

SCREW-ROUND HEAD

8шт.

11

233304000

WASHER-SPRING

14шт.

12

20C104010

SCREW-ROUND HEAD

6шт.

13

F12800170

WIRE-WIPER

1шт.

Выбрано товаров: 16