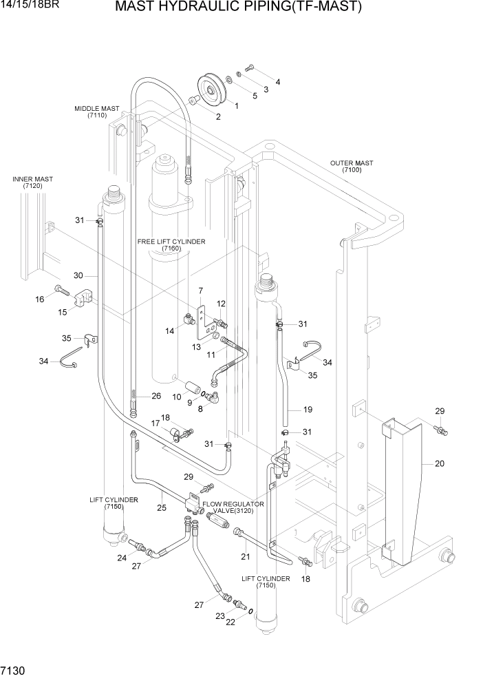
Запчасти Hyundai 14/15/18BR PAGE 7130 MAST HYDRAULIC PIPING(TF-MAST) РАБОЧЕЕ ОБОРУДОВАНИЕ

Схема запчастей Hyundai 14/15/18BR - PAGE 7130 MAST HYDRAULIC PIPING(TF-MAST) РАБОЧЕЕ ОБОРУДОВАНИЕ
FIT
1:1
100%

Артикул

Название

Примечание

Количество

1

33HJ-80500

PULLEY-HOSE

1шт.

1-1

33HH-80510

BEARING

NOT SHOWN

1шт.

2

31FV-90300

PIN-HOSE PULLEY

1шт.

3

S411-120006

WASHER-SPRING

1шт.

4

S017-120556

BOLT-HEX

1шт.

5

S441-12000B

WASHER-HARDENED

1шт.

7

37FP-81301

PLATE

14/15BR

1шт.

7

37FP-81300

PLATE

#0012

1шт.

7

37FP-81301

PLATE

18BR #0013

1шт.

8

X520-110016

ELBOW-90,ORFS

1шт.

9

S631-024004

O-RING

1шт.

10

EE19170100

DOWN SAFETY VALVE

1шт.

11

P930-084008

HOSE ASSY-ORFS 0X90

1шт.

12

S035-082026

BOLT-W/WASHER

2шт.

13

31FQ-70040-DA

NUT-HEX

1шт.

14

33FP-81600

ELBOW WA

1шт.

15

33FP-81500

CLAMP-HOSE

1шт.

16

S035-063526

BOLT-W/WASHER

2шт.

17

S543-180002

CLAMP-TUBE

3шт.

18

S035-081526

BOLT-W/WASHER

5шт.

19

P760-013030

HOSE-RUBBER

TF370

1шт.

19

P760-013040

HOSE-RUBBER

TF400

1шт.

19

P760-013050

HOSE-RUBBER

TF430

1шт.

19

P760-013060

HOSE-RUBBER

TF450

1шт.

19

P760-013064

HOSE-RUBBER

TF470

1шт.

19

P760-013074

HOSE-RUBBER

TF500

1шт.

19

P760-013094

HOSE-RUBBER

TF550

1шт.

19

P760-013114

HOSE-RUBBER

TF600

1шт.

19

P760-013134

HOSE-RUBBER

TF650

1шт.

19

P760-013154

HOSE-RUBBER

TF700

1шт.

20

37FP-81200

GUARD-HOSE

1шт.

21

37FP-81102

PIPE WA

1шт.

22

S631-018004

O-RING

1шт.

23

X500-110003

CONNECTOR-ORFS

1шт.

24

31FG-05200

VALVE-VELOCITY FUSE

1шт.

25

37FP-81001

PIPE WA

1шт.

26

P910-084047

HOSE ASSY-ORFS 0X0

TF370

1шт.

26

P910-084051

HOSE ASSY-ORFS 0X0

TF400

1шт.

26

P910-084055

HOSE ASSY-ORFS 0X0

TF430

1шт.

26

P910-084059

HOSE ASSY-ORFS 0X0

TF450

1шт.

26

P910-084061

HOSE ASSY-ORFS 0X0

TF470

1шт.

26

P910-084065

HOSE ASSY-ORFS 0X0

TF500

1шт.

26

P910-084072

HOSE ASSY-ORFS 0X0

TF550

1шт.

26

P910-084080

HOSE ASSY-ORFS 0X0

TF600

1шт.

26

P910-084088

HOSE ASSY-ORFS 0X0

TF650

1шт.

26

P910-084096

HOSE ASSY-ORFS 0X0

TF700

1шт.

27

P920-084009

HOSE ASSY-ORFS 0X45

2шт.

29

S037-102026

BOLT-W/WASHER

6шт.

30

P760-013187

HOSE-RUBBER

TF370

1шт.

30

P760-013197

HOSE-RUBBER

TF400

1шт.

30

P760-013207

HOSE-RUBBER

TF430

1шт.

30

P760-013217

HOSE-RUBBER

TF450

1шт.

30

P760-013221

HOSE-RUBBER

TF470

1шт.

30

P760-013231

HOSE-RUBBER

TF500

1шт.

30

P760-013251

HOSE-RUBBER

TF550

1шт.

30

P760-013271

HOSE-RUBBER

TF600

1шт.

30

P760-013291

HOSE-RUBBER

TF650

1шт.

30

P760-013311

HOSE-RUBBER

TF700

1шт.

31

33HA-83350

CLIP-HOSE

4шт.

34

S552-102370

CLAMP-BAND

2шт.

35

31FA-80110

CLAMP-HOSE

2шт.

Выбрано товаров: 61