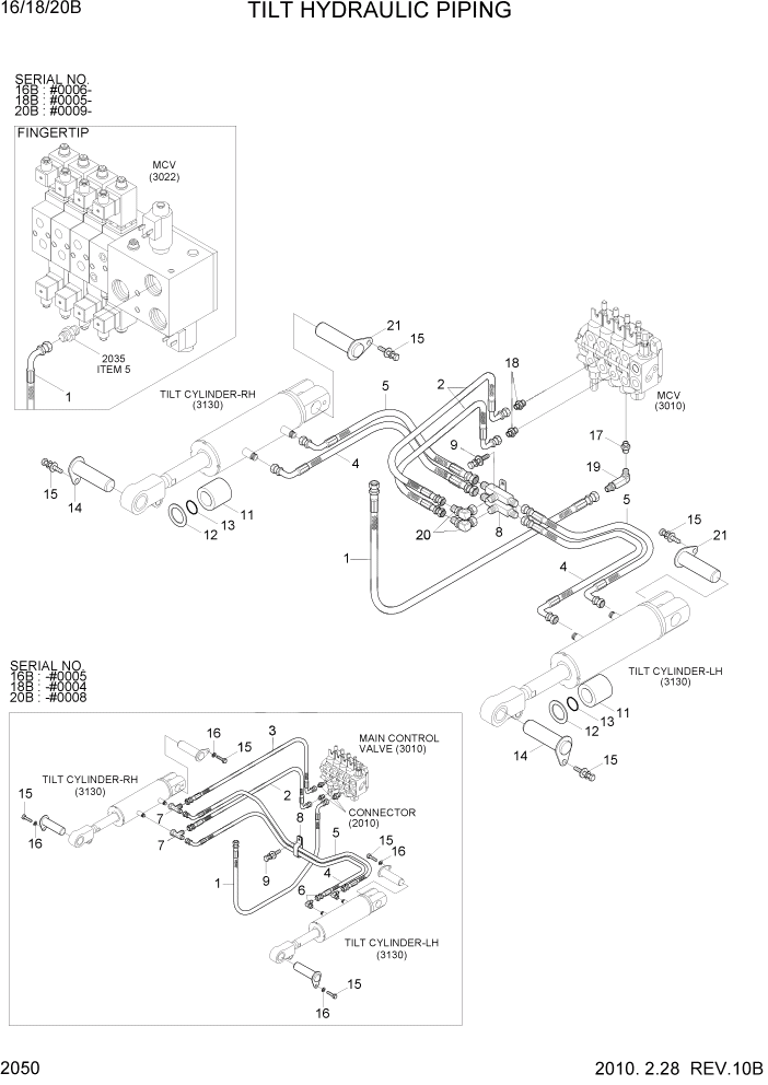
Запчасти Hyundai 16/18/20B-7 PAGE 2050 TILT HYDRAULIC PIPING ГИДРАВЛИЧЕСКАЯ СИСТЕМА

Схема запчастей Hyundai 16/18/20B-7 - PAGE 2050 TILT HYDRAULIC PIPING ГИДРАВЛИЧЕСКАЯ СИСТЕМА
FIT
1:1
100%

Артикул

Название

Примечание

Количество

1

P933-085024

HOSE ASSY-ORFS 0X90

16B #0002

1шт.

1

P933-085023

HOSE ASSY-ORFS 0X90

STD, 16B #0003 - #0005

1шт.

1

P933-085023

HOSE ASSY-ORFS 0X90

FINGERTIP,16B #0006

1шт.

1

P933-085024

HOSE ASSY-ORFS 0X90

STD, 18B #0002

1шт.

1

P933-085023

HOSE ASSY-ORFS 0X90

STD, 18B #0003 - #0004

1шт.

1

P933-085023

HOSE ASSY-ORFS 0X90

FINGERTIP,18B #0005

1шт.

1

P933-085024

HOSE ASSY-ORFS 0X90

20B #0005

1шт.

1

P933-085023

HOSE ASSY-ORFS 0X90

STD, 20B #0006 - #0008

1шт.

1

P933-085023

HOSE ASSY-ORFS 0X90

FINGERTIP,20B #0009

1шт.

1

P913-085022

HOSE ASSY-ORFS 0X0

STD, 16B #0006 - #0016

1шт.

1

P913-085019

HOSE ASSY-ORFS 0X0

STD, 16B #0017 - #0096

1шт.

1

P913-085020

HOSE ASSY-ORFS,THD(0X0)

STD, 16B #0097

1шт.

1

P913-085022

HOSE ASSY-ORFS 0X0

STD, 18B #0005 - #0007

1шт.

1

P913-085019

HOSE ASSY-ORFS 0X0

STD, 18B #0008 - #0050

1шт.

1

P913-085020

HOSE ASSY-ORFS,THD(0X0)

STD, 18B #0051

1шт.

1

P913-085022

HOSE ASSY-ORFS 0X0

STD, 20B #0009 - #0011

1шт.

1

P913-085019

HOSE ASSY-ORFS 0X0

STD, 20B #0012 - #0126

1шт.

1

P913-085020

HOSE ASSY-ORFS,THD(0X0)

STD, 20B #0127

1шт.

2

P930-044010

HOSE ASSY-ORFS 0X90

16B #0002

1шт.

2

P930-044010

HOSE ASSY-ORFS 0X90

16B #0003

2шт.

2

P930-044010

HOSE ASSY-ORFS 0X90

18B #0002

1шт.

2

P930-044010

HOSE ASSY-ORFS 0X90

18B #0003

2шт.

2

P930-044010

HOSE ASSY-ORFS 0X90

20B #0005

1шт.

2

P930-044010

HOSE ASSY-ORFS 0X90

20B #0006

2шт.

3

P930-044006

HOSE ASSY-ORFS 0X90

16B #0002

1шт.

3

P930-044006

HOSE ASSY-ORFS 0X90

18B #0002

1шт.

3

P930-044006

HOSE ASSY-ORFS 0X90

20B #0005

1шт.

4

P930-044018

HOSE ASSY-ORFS 0X90

16B #0002

1шт.

4

P930-044009

HOSE ASSY-ORFS 0X90

16B #0003

1шт.

4

P930-044018

HOSE ASSY-ORFS 0X90

18B #0002

1шт.

4

P930-044009

HOSE ASSY-ORFS 0X90

18B #0003

1шт.

4

P930-044018

HOSE ASSY-ORFS 0X90

20B #0006

1шт.

4

P930-044009

HOSE ASSY-ORFS 0X90

20B #0006

1шт.

5

P930-044014

HOSE ASSY-ORFS 0X90

16B #0002

1шт.

5

P930-044007

HOSE ASSY-ORFS 0X90

16B #0003

1шт.

5

P930-044014

HOSE ASSY-ORFS 0X90

18B #0002

1шт.

5

P930-044007

HOSE ASSY-ORFS 0X90

18B #0003

1шт.

5

P930-044014

HOSE ASSY-ORFS 0X90

20B #0002

1шт.

5

P930-044007

HOSE ASSY-ORFS 0X90

20B #0006

1шт.

6

X850-515100

ELBOW-90,SWIVEL,ORFS

16B #0002

2шт.

6

X850-515100

ELBOW-90,SWIVEL,ORFS

18B #0002

2шт.

6

X850-515100

ELBOW-90,SWIVEL,ORFS

20B #0005

2шт.

7

X840-515151

TEE-R/TYPE,SWIVEL,ORFS

16B #0002

2шт.

7

X840-515151

TEE-R/TYPE,SWIVEL,ORFS

18B #0002

2шт.

7

X840-515151

TEE-R/TYPE,SWIVEL,ORFS

20B #0005

2шт.

8

31L6-02460

CLAMP-TUBE

16B #0002

1шт.

8

31FY-70520

TEE

16B #0003

1шт.

8

31L6-02460

CLAMP-TUBE

18B #0002

1шт.

8

31FY-70520

TEE

18B #0003

1шт.

8

31L6-02460

CLAMP-TUBE

20B #0005

1шт.

8

31FY-70520

TEE

20B #0006

1шт.

9

S035-081526

BOLT-W/WASHER

16B #0002

1шт.

9

S035-082526

BOLT-W/WASHER

16B #0003

1шт.

9

S035-081526

BOLT-W/WASHER

18B #0002

1шт.

9

S035-082526

BOLT-W/WASHER

18B #0003

1шт.

9

S035-081526

BOLT-W/WASHER

20B #0005

1шт.

9

S035-082526

BOLT-W/WASHER

20B #0006

1шт.

11

31FY-70510

SPACER-TILT CYL(5B)-56MM

SEE 3130

2шт.

12

31FE-70210

SHIM(1.0T)

ARшт.

13

S631-030004

O-RING

2шт.

14

FHC1002200

PIN

16B #0089

4шт.

14

FHC1002200

PIN

16B #0090

2шт.

14

FHC1002200

PIN

18B #0049

4шт.

14

FHC1002200

PIN

18B #0050

2шт.

14

FHC1002200

PIN

20B #0120

4шт.

14

FHC1002200

PIN

20B #0121

2шт.

15

S017-120206

BOLT-HEX

16B #0002

4шт.

15

S035-102026

BOLT-W/WASHER

16B #0003

4шт.

15

S017-120206

BOLT-HEX

18B #0002

4шт.

15

S035-102026

BOLT-W/WASHER

18B #0003

4шт.

15

S017-120206

BOLT-HEX

20B #0005

4шт.

15

S035-102026

BOLT-W/WASHER

20B #0006

4шт.

16

S411-120006

WASHER-SPRING

16B #0002

4шт.

16

S411-120006

WASHER-SPRING

18B #0002

4шт.

16

S411-120006

WASHER-SPRING

20B #0005

4шт.

17

31FG-20110

CONNECTOR

16B #0006

1шт.

17

31FG-20110

CONNECTOR

18B #0005

1шт.

17

31FG-20110

CONNECTOR

20B #0009

1шт.

18

31HG-90120

CONNECTOR

16B #0006

2шт.

18

31HG-90120

CONNECTOR

18B #0005

2шт.

18

31HG-90120

CONNECTOR

20B #0009

2шт.

19

31FY-20540

ELBOW-90

16B #0006

1шт.

19

31FY-20540

ELBOW-90

18B #0005

1шт.

19

31FY-20540

ELBOW-90

20B #0009

1шт.

20

X850-515100

ELBOW-90,SWIVEL,ORFS

16B #0003

2шт.

20

X850-515100

ELBOW-90,SWIVEL,ORFS

18B #0003

2шт.

20

X850-515100

ELBOW-90,SWIVEL,ORFS

20B #0003

2шт.

21

61HE-18000

PIN WA

15B #0090

2шт.

21

61HE-18000

PIN WA

18B #0050

2шт.

21

61HE-18000

PIN WA

20B #0121

2шт.

Выбрано товаров: 90