Запчасти Hyundai 20/25BR PAGE 7070 ATTACH HYDRAULIC PIPING(V-MAST) РАБОЧЕЕ ОБОРУДОВАНИЕ

Схема запчастей Hyundai 20/25BR - PAGE 7070 ATTACH HYDRAULIC PIPING(V-MAST) РАБОЧЕЕ ОБОРУДОВАНИЕ
FIT
1:1
100%

Артикул

Название

Примечание

Количество

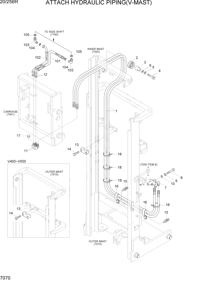
1

P910-064067

HOSE ASSY-ORFS 0X0

V250

2шт.

1

P910-064070

HOSE ASSY-ORFS 0X0

V270

2шт.

1

P910-064076

HOSE ASSY-ORFS 0X0

V300

2шт.

1

P910-064082

HOSE ASSY-ORFS 0X0

V330

2шт.

1

P910-064086

HOSE ASSY-ORFS 0X0

V350

2шт.

1

P910-064092

HOSE ASSY-ORFS 0X0

V370

2шт.

1

P910-064098

HOSE ASSY-ORFS 0X0

V400

2шт.

1

P910-064104

HOSE ASSY-ORFS 0X0

V430

2шт.

1

P910-064110

HOSE ASSY-ORFS 0X0

V450

2шт.

1

P910-064114

HOSE ASSY-ORFS 0X0

V470

2шт.

1

P910-064120

HOSE ASSY-ORFS 0X0

V500

2шт.

2

34FG-90201

PULLEY-HOSE

1шт.

3

31FV-90130

PIN-HOSE PULLEY

1шт.

4

S017-120606

BOLT-HEX

1шт.

5

S411-120006

WASHER-SPRING

1шт.

6

S441-12000B

WASHER-HARDENED

1шт.

7

31FS-90110

ELBOW WA

1шт.

8

S017-100756

BOLT-HEX

1шт.

9

S411-100006

WASHER-SPRING

1шт.

10

S403-10100B

WASHER-PLAIN

1шт.

11

31FS-90500

ELBOW WA

2шт.

11

35FS-90700

ELBOW WA

2шт.

12

31FG-80430

NUT-HEX

2шт.

13

34FG-90260

CLAMP-HOSE

1шт.

14

S035-063526

BOLT-W/WASHER

2шт.

15

S035-082026

BOLT-W/WASHER

3шт.

16

31L6-02470

CLAMP

3шт.

17

X710-100103

CAP-HYD,ORFS

2шт.

18

S552-102370

CLAMP-BAND

6шт.

101

P923-044010

HOSE ASSY-ORFS 0X45

1шт.

102

35FS-90600

HOSE ASSY-ORFS 45X90

1шт.

103

X520-310001

ELBOW-90,ORFS

2шт.

104

S621-011001

O-RING

2шт.

105

S611-012001

O-RING

2шт.

Выбрано товаров: 34