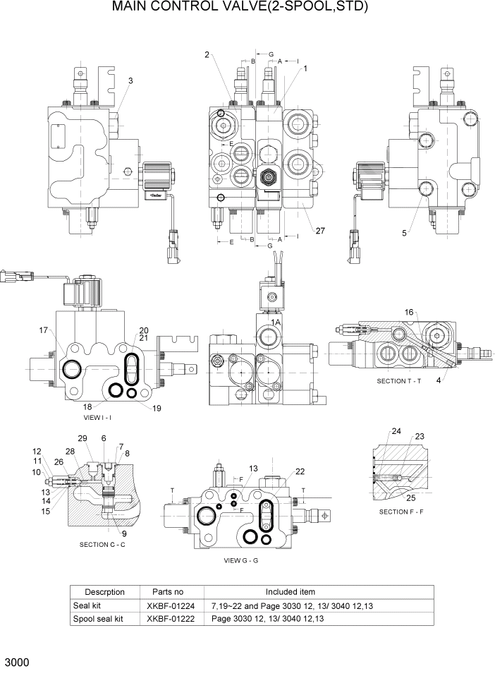
Запчасти Hyundai 35/40/45/50B PAGE 3000 MAIN CONTROL VALVE(2-SPOOL,STD) ГИДРАВЛИЧЕСКИЕ КОМПОНЕНТЫ

Схема запчастей Hyundai 35/40/45/50B - PAGE 3000 MAIN CONTROL VALVE(2-SPOOL,STD) ГИДРАВЛИЧЕСКИЕ КОМПОНЕНТЫ
FIT
1:1
100%

Артикул

Название

Примечание

Количество

*

31HD-02500

MCV-2SPOOL

1шт.

1

XKBF-01188

LIFT BLOCK ASSY

SEE 3030

1шт.

2

XKBF-01226

TILT BLOCK ASSY

SEE 3040

1шт.

3

XKBF-01210

GAGE PLUG

1шт.

4

@

PLUG

NOT

1шт.

NK5

XKBF-01211

LONG BOLT

NOT

4шт.

6

@

PLUG-HYDROSTAT

NOT

1шт.

NK7

XKBF-01177

O-RING

NOT

1шт.

8

@

SPRING-HYDROSTAT

NOT

1шт.

9

@

SLEEVE-HYDROSTAT

NOT

1шт.

NK10

XKBF-01213

PISTON-RELIEF

NOT

2шт.

NK11

XKBF-00984

NUT

NOT

2шт.

NK12

XKBF-01214

PLUG-RELIEF

NOT

2шт.

NK13

XKBF-01215

O-RING

NOT

9шт.

NK14

XKBF-00986

SPRING-RELIEF

NOT

2шт.

NK15

XKBF-00987

POPPET-PILOT

NOT

2шт.

16

@

BLIND PLUG

NOT

1шт.

NK17

XKBF-01183

O-RING

NOT

4шт.

NK18

XKBF-01217

O-RING

NOT

4шт.

NK19

XKBF-01218

O-RING

NOT

4шт.

NK20

XKBF-01219

O-RING

NOT

4шт.

21

@

RETAINER O-RING

NOT

4шт.

22

@

PLUG-BLIND

NOT

2шт.

23

@

BALL-STEEL

NOT

3шт.

24

@

SPRING-LOAD SEN

NOT

3шт.

25

@

SPRING-LOAD SEN

NOT

3шт.

26

@

O-RING

NOT

2шт.

27

XKBF-01209

T COVER

1шт.

28

@

SEAT-SYSTEM RELIEF

NOT

1шт.

29

@

PLUG

NOT

1шт.

K

XKBF-01002

TIE STUD-2 KIT

INCL 5

1шт.

K

XKBF-01221

KIT-SEAL,SECTION

INCL 7,17-20

1шт.

K

XKBF-01222

KIT-SEAL,SPOOL

SEE ILLUST

1шт.

K

XKBF-01223

KIT-RELIEF V/V

INCL 7,10-15

1шт.

K

XKBF-01224

KIT-SEAL

SEE ILLUST

1шт.

Выбрано товаров: 35