Запчасти Hyundai 35/40/45/50B PAGE 5030 STEERING COLUMN РУЛЕВОЕ & СИСТЕМА УПРАВЛЕНИЯ

Схема запчастей Hyundai 35/40/45/50B - PAGE 5030 STEERING COLUMN РУЛЕВОЕ & СИСТЕМА УПРАВЛЕНИЯ
FIT
1:1
100%

Артикул

Название

Примечание

Количество

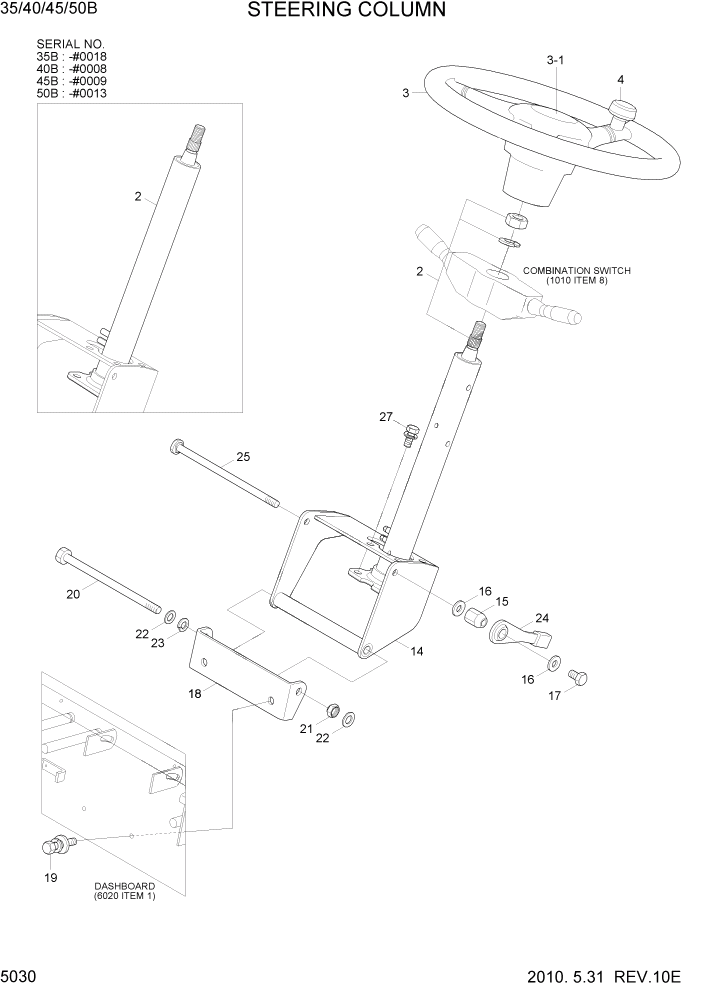
2

71FV-20070

STEERING COLUMN

#0018

1шт.

3

71HA-20300

STEERING WHEEL ASSY

1шт.

2

31FH-10100

COLUMN ASSY

35B #0019

1шт.

3-1

71HA-20310

HORN CAP

1шт.

2

71FV-20070

STEERING COLUMN

#0008

1шт.

4

34-0578

STEERING KNOB KIT

1шт.

2

31FH-10100

COLUMN ASSY

40B #0009

1шт.

2

71FV-20070

STEERING COLUMN

#0009

1шт.

2

31FH-10100

COLUMN ASSY

45B #0010

1шт.

2

71FV-20070

STEERING COLUMN

#0013

1шт.

2

31FH-10100

COLUMN ASSY

50B #0014

1шт.

3

71HA-20300

STEERING WHEEL ASSY

1шт.

3-1

71HA-20310

HORN CAP

1шт.

4

34-0578

STEERING KNOB KIT

1шт.

14

71FH-41101

BRACKET-STEERING UNIT

1шт.

15

FAD0600070

NUT-ADJUST

1шт.

16

FAD0600080

WASHER

2шт.

17

FAD0600110

BOLT-ADJUST

1шт.

18

71FH-20021

BRACKET-COLUMN

1шт.

19

S035-082026

BOLT-W/WASHER

2шт.

20

S017-122256

BOLT-HEX

1шт.

21

S275-120006

NUT-SELF LOCKING

1шт.

22

S403-12200B

WASHER-PLAIN

2шт.

23

S411-120006

WASHER-SPRING

1шт.

24

71FH-20040

LEVER-ADJUST

1шт.

25

71FH-20030

BOLT-ADJUST

1шт.

27

S037-102526

BOLT-W/WASHER

4шт.

Выбрано товаров: 27