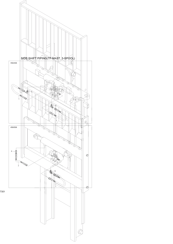
Запчасти Hyundai 35/40/45/50B PAGE 7301 SIDE SHIFT PIPING(TF-MAST,3-SPOOL) РАБОЧЕЕ ОБОРУДОВАНИЕ

Схема запчастей Hyundai 35/40/45/50B - PAGE 7301 SIDE SHIFT PIPING(TF-MAST,3-SPOOL) РАБОЧЕЕ ОБОРУДОВАНИЕ
FIT
1:1
100%

Артикул

Название

Примечание

Количество

*

@

SIDE SHIFT PIPING GROUP

NOT

1шт.

1

P913-064009

HOSE ASSY-ORFS 0X0

2шт.

2

31FG-80400

ELBOW-90

2шт.

*

@

SIDE SHIFT PIPING GROUP

NOT

1шт.

1

P913-064009

HOSE ASSY-ORFS 0X0

1шт.

2

P913-064007

HOSE ASSY-ORFS 0X0

1шт.

3

31FG-80400

ELBOW-90

1шт.

4

X500-310002

CONNECTOR-ORFS

1шт.

Выбрано товаров: 8