Запчасти Hyundai 15L/18L/20LA PAGE 3B50 PRIORITY VALVE ГИДРАВЛИЧЕСКАЯ СИСТЕМА

Схема запчастей Hyundai 15L/18L/20LA - PAGE 3B50 PRIORITY VALVE ГИДРАВЛИЧЕСКАЯ СИСТЕМА
FIT
1:1
100%

Артикул

Название

Примечание

Количество

*

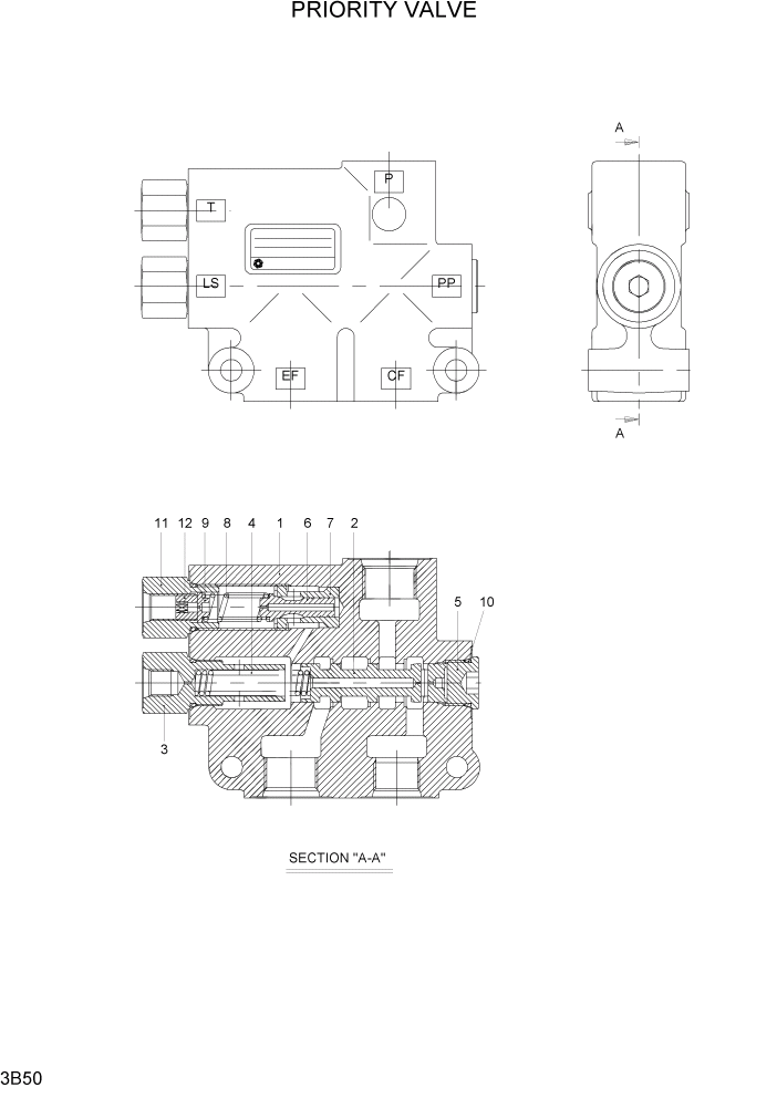
31HH-03000

PRIORITY VALVE

1шт.

1

XKAU-00177

BODY

1шт.

2

XKAU-00178

SPOOL

1шт.

3

XKAU-00179

END PLUG

1шт.

4

XKAU-00180

SPRING

1шт.

5

XKAU-00074

END PLUG

1шт.

6

XKAU-00181

SPOOL

1шт.

7

XKAU-00086

BUSHING

1шт.

8

XKAU-00182

SPRING

1шт.

9

XKAU-00183

ORIFICE

1шт.

10

XKAU-00026

O-RING

3шт.

11

XKAU-00184

END PLUG

1шт.

12

XKAU-00185

CONTROL SCREW

1шт.

Выбрано товаров: 13