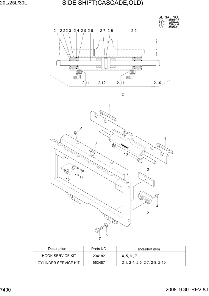
Запчасти Hyundai 20/25/30L-7 PAGE 7400 SIDE SHIFT(CASCADE,OLD) РАБОЧЕЕ ОБОРУДОВАНИЕ

Схема запчастей Hyundai 20/25/30L-7 - PAGE 7400 SIDE SHIFT(CASCADE,OLD) РАБОЧЕЕ ОБОРУДОВАНИЕ
FIT
1:1
100%

Артикул

Название

Примечание

Количество

*

65FG-00120

SIDE SHIFT ASSY(SINGLE)

SINGLE,20/25L

1шт.

*

65FG-00130

SIDE SHIFT ASSY(DOUBLE)

DOUBLE,20/25L

1шт.

*

65FG-10110

SIDE SHIFT ASSY(SINGLE)

30L,SINGLE #0061

1шт.

*

65HA-10110

SIDE SHIFT ASSY(SINGLE)

30L,S,SEE 7401 #0062

1шт.

*

65FG-10120

SIDE SHIFT ASSY(DOUBLE)

30L,DOUBLE

1шт.

1

672018

BEARING-UPPER

2шт.

1

804065

BEARING-UP,BRONZE

2шт.

2

6025686

CYLINDER ASSY

SINGLE,20/25L #0061

1шт.

2

6025688

CYLINDER ASSY

DOUBLE,20/25L #0061

1шт.

2

583971

CYLINDER ASSY

SINGLE,30L #0061

1шт.

2

583973

CYLINDER ASSY

DOUBLE,30L

1шт.

K2-1

562131

SEAL-ROD WIPER

2шт.

2-2

562951

RING-SNAP

2шт.

2-3

562942

RING-RETAINING

2шт.

K2-4

218228

O-RING

2шт.

K2-5

562132

SEAL-ROD

2шт.

2-6

562055

ROD & PISTON ASSY

1шт.

K2-7

563278

RING-BEARING

2шт.

K2-8

564141

SEAL-PISTON

1шт.

*

65FG-00120

SIDE SHIFT ASSY(SINGLE)

SINGLE,20L,7402 #0017

1шт.

K2-10

208378

CAP-ROD END

1шт.

2-11

564226

WASHER-SPEED CNTL

2шт.

N2-12

@

SHELL-CYLINDER

NOT

1шт.

K

563487

CYLINDER SERVICE KIT

1шт.

*

65FG-00120

SIDE SHIFT ASSY(SINGLE)

SINGLE,25L,7402 #0773

1шт.

*

65FG-00130

SIDE SHIFT ASSY

DOUBLE,20L,7402 #0017

1шт.

*

65FG-00130

SIDE SHIFT ASSY

DOUBLE,25L,7402 #0773

1шт.

K5

225570

HOOK-LOWER/BRONZE

OPT

2шт.

*

65FG-10110

SIDE SHIFT ASSY

SINGLE,30L,7401 #0061

1шт.

*

65FG-10120

SIDE SHIFT ASSY

DOUBLE,30L,7402 #0531

1шт.

N8

@

FRAME

NOT

1шт.

9

7403

NIPPLE-GREASE

2шт.

1

672018

BEARING-UPPER

2шт.

1

804065

BEARING-UP,BRONZE

2шт.

2

6025686

CYLINDER ASSY

SINGLE,20/25L

1шт.

2

6025688

CYLINDER ASSY

DOUBLE,20/25L

1шт.

2

583971

CYLINDER ASSY

SINGLE,30L #0061

1шт.

15

208355

RETAINER

2шт.

2

583973

CYLINDER ASSY

DOUBLE,30L

1шт.

K2-1

562131

SEAL-ROD WIPER

2шт.

K

563487

CYLINDER SERVICE KIT

SEE ILLUST

1шт.

2-2

562951

RING-SNAP

2шт.

2-3

562942

RING-RETAINING

2шт.

K2-4

218228

O-RING

2шт.

K2-5

562132

SEAL-ROD

2шт.

2-6

562055

ROD & PISTON ASSY

1шт.

K2-7

563278

RING-BEARING

2шт.

K2-8

564141

SEAL-PISTON

1шт.

2-9

562792

RETAINER

1шт.

K2-10

208378

CAP-ROD END

1шт.

2-11

564226

WASHER-SPEED CNTL

2шт.

N2-12

@

SHELL-CYLINDER

NOT

1шт.

K

563487

CYLINDER SERVICE KIT

1шт.

3

208350

BEARING-LOWER

2шт.

K4

553857

NUT

4шт.

K5

204186

HOOK-LOWER

2шт.

K5

225570

HOOK-LOWER/BRONZE

OPT

2шт.

K6

667225

WASHER

4шт.

K7

639121

SCREW-CAP

4шт.

N8

@

FRAME

NOT

1шт.

9

7403

NIPPLE-GREASE

ARшт.

N10

601676

FITTING-90

NOT

2шт.

15

208355

RETAINER

2шт.

16

202346

WASHER

2шт.

17

763169

SCREW-CAP

2шт.

K

204182

HOOK SERVICE KIT

SEE ILLUST

1шт.

N

@

NOT INDIVIDUALLY SUPPLIED

NOT

ARшт.

Выбрано товаров: 67