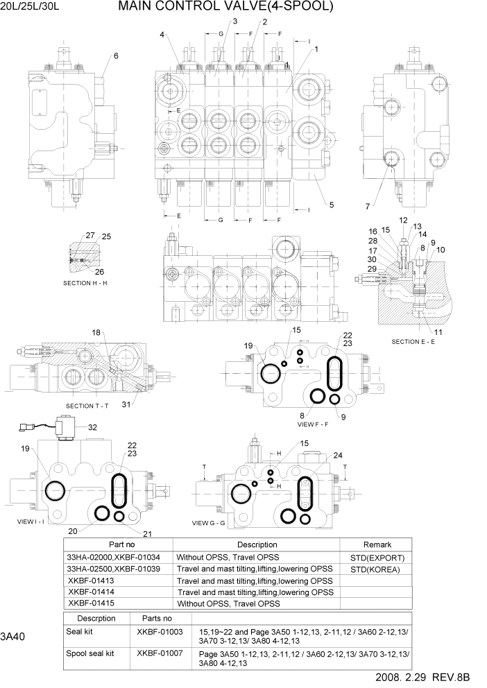
Запчасти Hyundai 20/25/30L-7 PAGE 3A40 MAIN CONTROL VALVE(4-SPOOL) ГИДРАВЛИЧЕСКАЯ СИСТЕМА

Схема запчастей Hyundai 20/25/30L-7 - PAGE 3A40 MAIN CONTROL VALVE(4-SPOOL) ГИДРАВЛИЧЕСКАЯ СИСТЕМА
FIT
1:1
100%

Артикул

Название

Примечание

Количество

*

33HA-02000

MAIN CONTROL VALVE-4SPOOL

SEE ILLUST

1шт.

*

33HA-02500

MCV-4SP(TR-MS OPSS)

SEE ILLUST

1шт.

1

XKBF-01034

LIFT BLOCK ASSY

SEE ILLUST

1шт.

1

XKBF-01039

LIFT BLOCK ASSY

SEE ILLUST

1шт.

2

XKBF-01026

TILT BLOCK ASSY

SEE 3A60

1шт.

3

XKBF-01042

AUX BLOCK ASSY

SEE 3A70

1шт.

4

XKBF-01027

AUX BLOCK ASSY

SEE 3A80

1шт.

5

XKBF-01414

T COVER FOR OPSS

SEE ILLUST

1шт.

XKBF-01415

T COVER FOR STD

SEE ILLUST

1шт.

6

XKBF-00978

GAUGE PLUG ASSY

1шт.

K7

XKBF-01043

BOLT-LONG

4шт.

8

XKBF-00980

PLUG-HYDROSTAT

1шт.

K9

XKBF-00604

O-RING

1шт.

10

XKBF-00981

SPRING-HYDROSTAT

1шт.

11

XKBF-00982

SLEEVE-HYDROSTAT

1шт.

K12

XKBF-00983

PISTON-RELIEF

2шт.

K13

XKBF-00984

NUT

2шт.

K14

XKBF-00985

PLUG-RELIEF

2шт.

K15

XKBF-01025

O-RING

9шт.

K16

XKBF-00986

SPRING-RELIEF

2шт.

K17

XKBF-00987

POPPET-PILOT

2шт.

18

XKBF-00988

BLIND PLUG-ORIFICE

2шт.

K19

XKBF-00989

O-RING

4шт.

K20

XKBF-00990

O-RING

4шт.

K21

XKBF-00991

O-RING

4шт.

K22

XKBF-00992

O-RING

4шт.

23

XKBF-00993

RETAINER O-RING

4шт.

24

XKBF-00994

PLUG-BLIND

2шт.

25

XKBF-00995

BALL-STEEL

3шт.

26

XKBF-00996

SPRING-LOAD SEN

3шт.

27

XKBF-00997

SPRING-LOAD SEN

3шт.

28

XKBF-00998

O-RING

2шт.

29

XKBF-01000

SEAT-SYSTEM RELIEF

1шт.

30

XKBF-01001

SEAT-SECONDARY RELIEF

1шт.

31

XKBF-00931

PLUG

1шт.

32

XKBF-01037

SOL. V/V(1024000050)

SEE ILLUST,20L #0003

1шт.

32

XKBF-01413

SOLENOID V/V

SEE ILLUST

1шт.

32

XKBF-01037

SOL. V/V(1024000050)

SEE ILLUST,25L #0135

1шт.

32

XKBF-01413

SOLENOID V/V

SEE ILLUST,25L #0136

1шт.

32

XKBF-01037

SOL. V/V(1024000050)

SEE ILLUST,30L #0084

1шт.

32

XKBF-01413

SOLENOID V/V

SEE ILLUST,30L #0085

1шт.

K

XKBF-01003

SEAL KIT

SEE ILLUST

1шт.

K

XKBF-01006

RELIEF VALVE KIT

INCL 9,12-17

1шт.

K

XKBF-01007

SEAL SPOOL KIT

SEE ILLUST

1шт.

K

XKBF-01008

SEAL SECTION KIT

INCL 15,19-22

1шт.

K

XKBF-01046

TIE STUD-2 KIT

INCL 7

1шт.

Выбрано товаров: 46