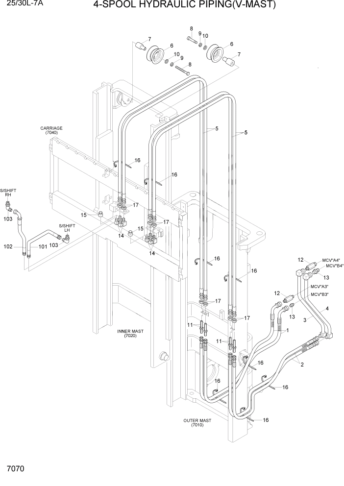
Запчасти Hyundai 25/30L-7A PAGE 7070 4-SPOOL HYDRAULIC PIPING(V-MAST) РАБОЧЕЕ ОБОРУДОВАНИЕ

Схема запчастей Hyundai 25/30L-7A - PAGE 7070 4-SPOOL HYDRAULIC PIPING(V-MAST) РАБОЧЕЕ ОБОРУДОВАНИЕ
FIT
1:1
100%

Артикул

Название

Примечание

Количество

1

P933-064032

HOSE ASSY-ORFS 0X90

2шт.

2

P913-064022

HOSE ASSY-ORFS 0X0

2шт.

3

33HA-90500

PIPE WA

1шт.

4

33HA-90600

PIPE WA

1шт.

5

P910-064052

HOSE ASSY-ORFS 0X0

V300

4шт.

5

P910-064058

HOSE ASSY-ORFS 0X0

V330

4шт.

5

P910-064062

HOSE ASSY-ORFS 0X0

V350

4шт.

5

P910-064068

HOSE ASSY-ORFS 0X0

V370

4шт.

5

P910-064074

HOSE ASSY-ORFS 0X0

V400

4шт.

5

P910-064080

HOSE ASSY-ORFS 0X0

V430

4шт.

5

P910-064086

HOSE ASSY-ORFS 0X0

V450

4шт.

5

P910-064090

HOSE ASSY-ORFS 0X0

V470

4шт.

5

P910-064096

HOSE ASSY-ORFS 0X0

V500

4шт.

6

34FG-90201

PULLEY-HOSE

2шт.

7

31FV-90130

PIN-HOSE PULLEY

2шт.

8

S017-120606

BOLT-HEX

2шт.

9

S411-120006

WASHER-SPRING

2шт.

10

S441-120006

WASHER-HARDENED

2шт.

11

31FG-80210

CONNECTOR

4шт.

12

31FQ-10070

CONNECTOR

2шт.

13

31N5-30050

CONNECTOR

2шт.

14

31FS-90500

ELBOW WA

4шт.

15

X710-100103

CAP-HYD,ORFS

4шт.

16

S552-050203

CLAMP-BAND

4шт.

17

31FG-80430

NUT-HEX

12шт.

101

P913-064009

HOSE ASSY-ORFS 0X0

SIDE SHIFT

1шт.

102

P933-064007

HOSE ASSY-ORFS 0X90

SIDE SHIFT

1шт.

103

31FG-80400

ELBOW-90

S/S

2шт.

103

31FG-80700

ELBOW-90

S/SHIFT

2шт.

Выбрано товаров: 29