Качественные детали и логистика
Оригинальные и аналоговые запчасти с доставкой по России, Казахстану и Беларуси
©2022 PartSell ООО "Система" ИНН 2463123282 ОГРН 1212400004838
Центральный офис: г. Красноярск, Академика Киренского, д.87, пом.4
Телефон: 8 (800) 777-65-74 Email: zakaz@partsell.ru
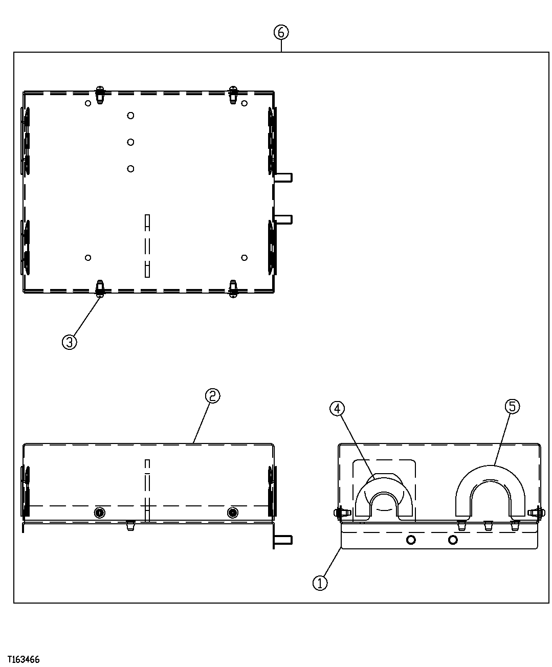
231 - ELECTRICAL JUNCTION BOX COMPONENTS
№
Артикул
Название
Примечание
Количество
1
FFSB110686
Plate
1шт.
2
FFSB110690
Cover
3
21M7265
Screw
M5 X 12 (SUB FOR FFSB107789)
4шт.
4
FFSB110281
Sealing Trim
(CUT TO 95 MM LENGTH) (SUB FOR FFSB110918)
2шт.
5
(CUT TO 130 MM LENGTH) (SUB FOR FFSB110919)
6
Circuit Box
( FFSB110691 NLA)
Выбрано товаров: 0