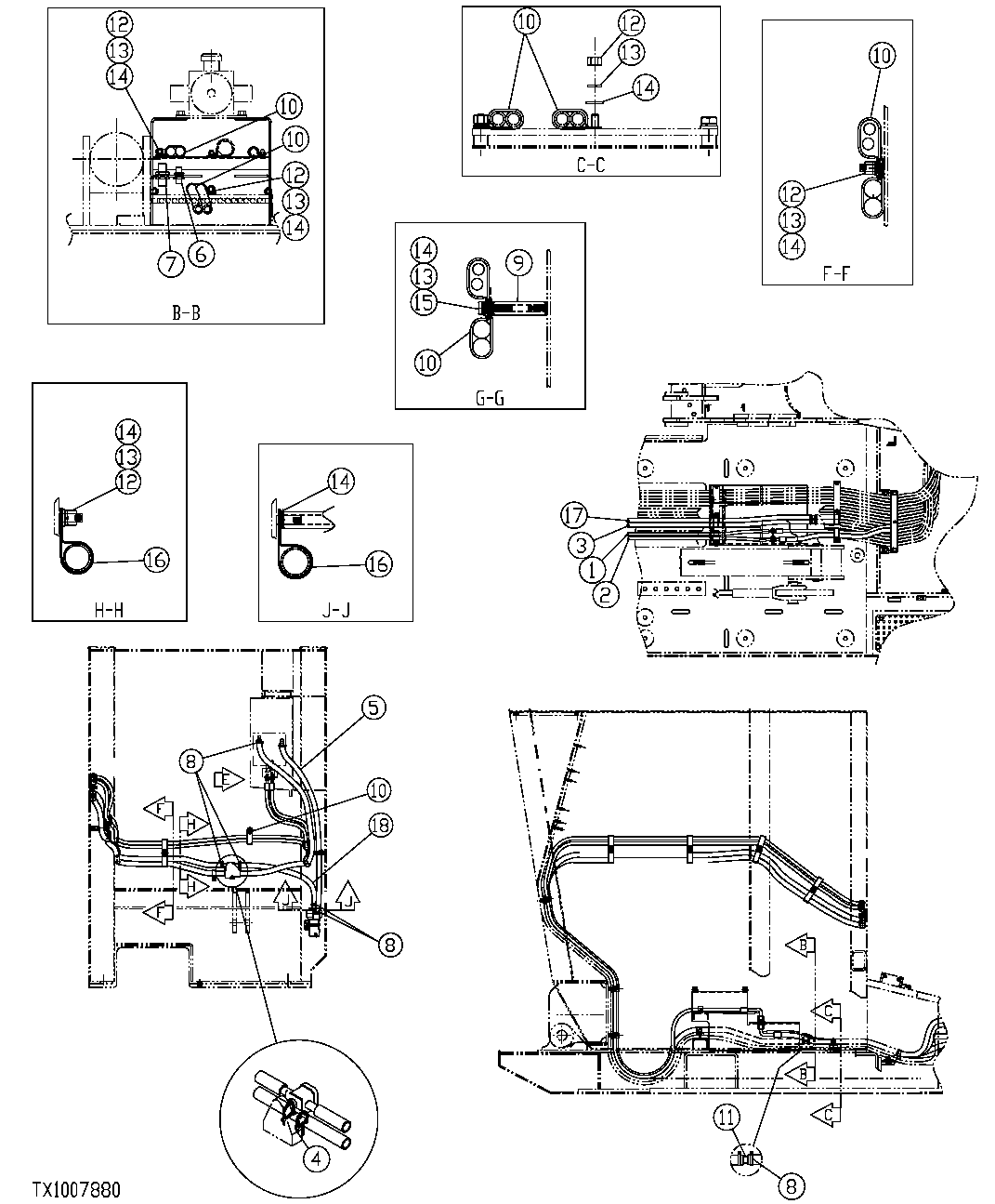
Запчасти John Deere 35C RTS 398 - REAR ENTRY CAB HEATER AND A/C PLUMBING WITH 72 INCH RISER 1830C REAR ENTRY CAB HEATING AND AIR CONDITIONING

Схема запчастей John Deere 35C RTS - 398 - REAR ENTRY CAB HEATER AND A/C PLUMBING WITH 72 INCH RISER 1830C REAR ENTRY CAB HEATING AND AIR CONDITIONING
FIT
1:1
100%

Артикул

Название

Примечание

Количество

1

FF202372

Refrigerant Hose

SUB FOR FFSB112127

1шт.

2

FF202373

Refrigerant Hose

SUB FOR FFSB112128

1шт.

3

FFSB102824

Radiator Hose

2шт.

4

H77698

Tie Band

SUB FOR FFSB108261

1шт.

5

FFSB102825

Radiator Hose

1шт.

6

FFSB110573

Adapter Fitting

1шт.

7

FFSB110574

Adapter Fitting

1шт.

8

FFSB102829

Clamp

10шт.

9

FFSB107369

Nut

2шт.

10

FFSB107516

Clamp

24шт.

11

FFSB110575

Adapter Fitting

2шт.

12

14M7274

Nut

M10 SUB FOR FFSB107411

11шт.

13

12M7066

Lock Washer

10 mm SUB FOR FFSB107409

14шт.

14

24M7096

Washer

10.500 X 18 X 1.600 mm SUB FOR FFSB107709

14шт.

15

19M7662

Cap Screw

M10 X 30 SUB FOR FFSB107141

2шт.

16

AT120153

Clamp

SUB FOR FFSB107350

2шт.

17

TY22328

Bulk Hose

SUB FOR FFSB113473, CTL 6272 mm

1шт.

18

TY22328

Bulk Hose

SUB FOR FFSB114267, CTL 575 mm

1шт.

Выбрано товаров: 18