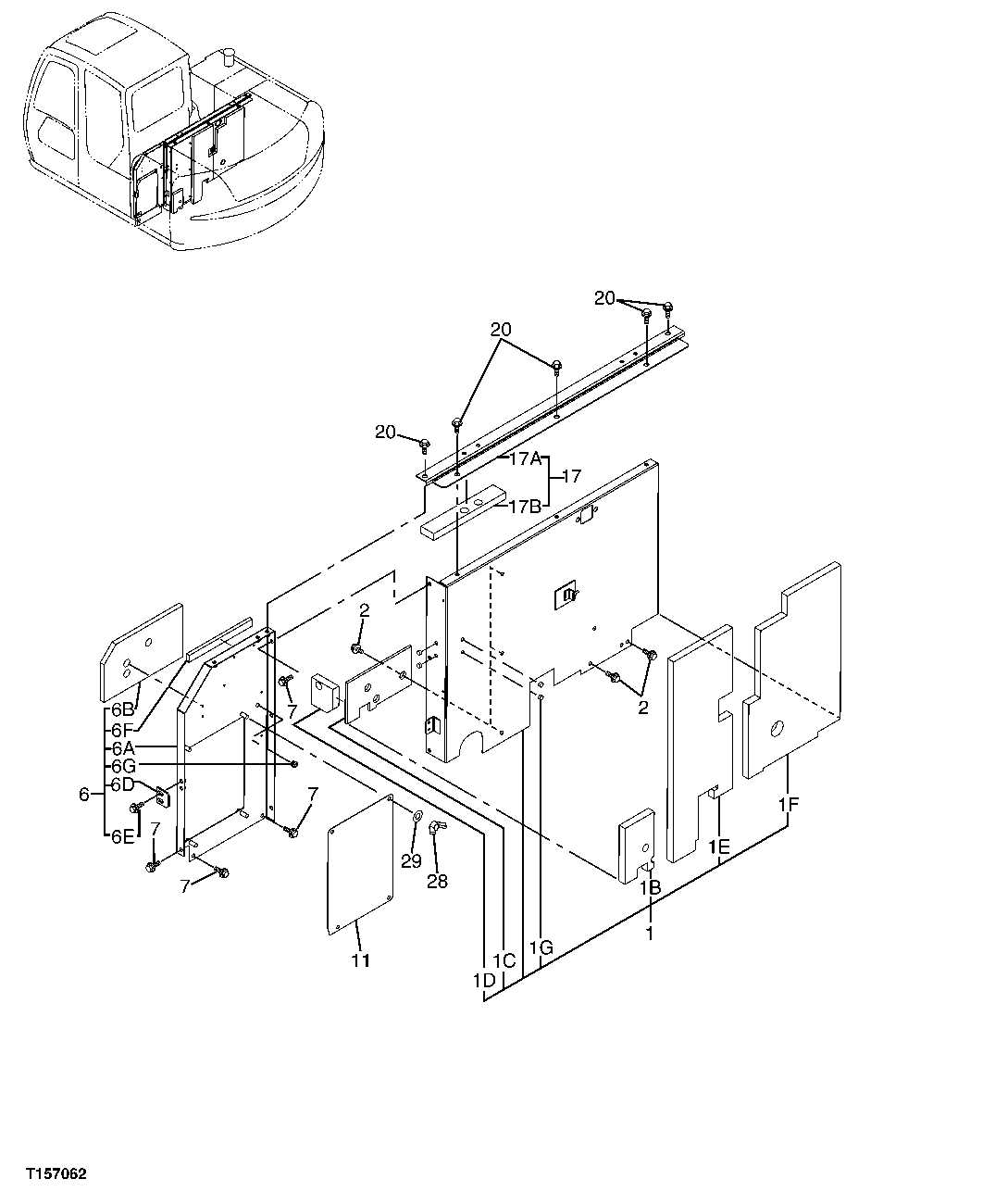
Запчасти John Deere 60C LC 123 - ENGINE AND COOLING PACKAGE COMPARTMENT FRONT PANELS 1910 HOOD OR ENGINE ENCLOSURE

Схема запчастей John Deere 60C LC - 123 - ENGINE AND COOLING PACKAGE COMPARTMENT FRONT PANELS 1910 HOOD OR ENGINE ENCLOSURE
FIT
1:1
100%

Артикул

Название

Примечание

Количество

1

9206201

Cover

1шт.

1B

4452136

Isolator

1шт.

1C

4452147

Isolator

1шт.

1D

4452132

Isolator

1шт.

1E

3093108

Isolator

1шт.

1F

3093110

Isolator

1шт.

1G

4461449

Pipe Plug

4шт.

2

19M7662

Cap Screw

M10 X 30

5шт.

12M7066

Lock Washer

10 mm

5шт.

24M7028

Washer

10.500 X 20 X 2 mm

5шт.

6

9211555

Cover

1шт.

6A

Cover

( 7042033 NLA)

1шт.

6B

4463747

Isolator

1шт.

6D

4455694

Stop

1шт.

6E

19M7402

Cap Screw

M10 X 25 (SUB FOR J031025)

2шт.

12M7066

Lock Washer

10 mm

2шт.

24M7296

Washer

10.500 X 30 X 2.500 mm

2шт.

6F

4457963

Isolator

1шт.

6G

94-2817

Grommet

1шт.

7

19M7662

Cap Screw

M10 X 30

6шт.

12M7066

Lock Washer

10 mm

6шт.

24M7028

Washer

10.500 X 20 X 2 mm

6шт.

11

4470117

Cover

1шт.

17

9208524

Cover

1шт.

17A

Bracket

( 8083007 NLA)

1шт.

17B

4454331

Isolator

1шт.

20

19M7662

Cap Screw

M10 X 30

5шт.

12M7067

Lock Washer

12 mm

5шт.

24M7346

Washer

11 X 20 X 2 mm

5шт.

28

14M7025

Wing Nut

M10

4шт.

29

24M7101

Washer

11 X 34 X 3 mm

4шт.

Выбрано товаров: 31