Запчасти John Deere 60C LC 130 - HYDRAULIC PUMP COMPARTMENT DOOR INSULATION (SN XXXXXX- ) 1910 HOOD OR ENGINE ENCLOSURE

Схема запчастей John Deere 60C LC - 130 - HYDRAULIC PUMP COMPARTMENT DOOR INSULATION (SN XXXXXX- ) 1910 HOOD OR ENGINE ENCLOSURE
FIT
1:1
100%

Артикул

Название

Примечание

Количество

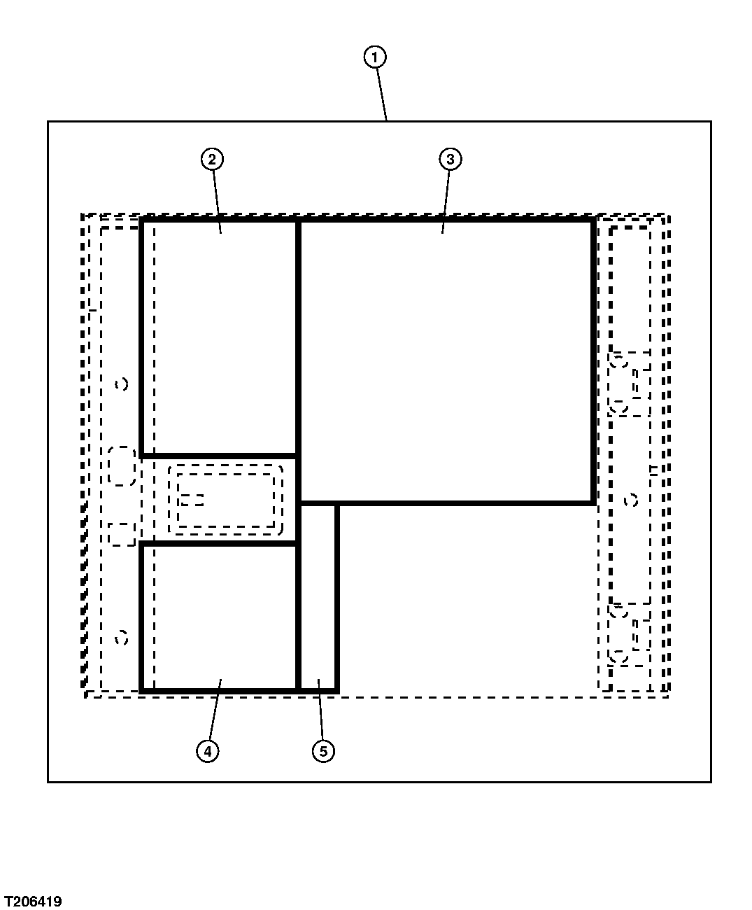
1

Isolator

(SINGLE PIECE ASSEMBLY) (ORDER 4461 780 (UNITS BUILT BEFORE JULY 2004))

1шт.

2

4635520

Isolator

1шт.

3

4635521

Isolator

1шт.

4

4635522

Isolator

1шт.

5

4635523

Isolator

1шт.

Выбрано товаров: 5