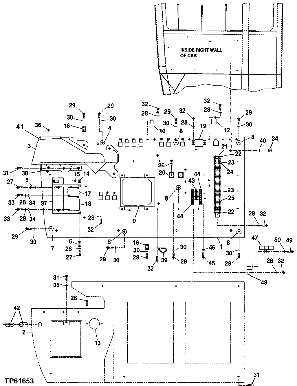
Запчасти John Deere 200LC, 330LC, 370 34 - Electrical Panel (Rear Entry Cab Units With Heeler) 1674 Wiring Harness And Switches

Схема запчастей John Deere 200LC, 330LC, 370 - 34 - Electrical Panel (Rear Entry Cab Units With Heeler) 1674 Wiring Harness And Switches
FIT
1:1
100%

Артикул

Название

Примечание

Количество

1

Panel

FFSB102185 NLA Electrical

1шт.

2

Cover

FFSB102186 NLA

1шт.

3

FFSB102544

Monitor

1шт.

4

FFSB102187

Spacer

1шт.

5

FFSB102188

Spacer

2шт.

6

FFSB102189

Spacer

2шт.

7

FFSB102190

Spacer

1шт.

8

FFSB102191

Spacer

5шт.

9

4386125

Vehicle Controller

SUB FOR AT250049

1шт.

10

4414207

Relay

SUB FOR AT186647

11шт.

12

FFSB102192

Relay

2шт.

13

4370312

Hour Meter

SUB FOR FFSB102526, THIS APPLICATION

1шт.

14

4367375

Bracket

SUB FOR AT214036

1шт.

15

4359384

Switch

SUB FOR AT213984

1шт.

16

DH400528

Spacer

SUB FOR FFSB102193

8шт.

17

FFSB102194

Electrical Connector Assy

Terminal Connector

1шт.

18

FFSB102195

Fuse Box

Fuse

1шт.

19

AT85258

Relay

SUB FOR FFSB102196

1шт.

20

FFSB102197

Rectifier

2шт.

21

FFSB102198

Bracket

1шт.

22

FFSB102199

Bracket

2шт.

23

FFSB102200

Elec. Connector Terminal

4шт.

24

FFSB102201

Elec. Connector Accessory

1шт.

25

FFSB102202

Elec. Connector Terminal

35шт.

26

19H2961

Screw

0.190" X 3/4"

4шт.

27

FFSB102527

Cap Screw

4шт.

28

12H251

Lock Washer

0.190"

52шт.

29

19H2932

Screw

1/4" X 1"

8шт.

30

12H271

Lock Washer

1/4"

14шт.

31

19H3807

Screw

1/4" X 3/4" FFSB102542 NLA

11шт.

32

21H1019

Screw

0.190" X 1/2"

46шт.

33

21H1197

Screw

0.190" X 1-1/4"

4шт.

34

14H786

Nut

1/4"

12шт.

35

Insert

FFSB102229 NLA

1шт.

36

FFSB102203

Cap

1шт.

37

FFSB102204

Bracket

1шт.

38

FFSB102205

Bracket

1шт.

39

FFSB102206

Tie Band

13шт.

40

24H1287

Washer

9/32" X 5/8" X 0.065"

8шт.

41

FFSB102308

Cover

1шт.

42

AR60937

Electrical Lighter

ALSO ORDER AU42809, AT7 8634 AND AT78633 12 Volt

1шт.

AU42809

Resistor

12 Volt

1шт.

AT78634

Wiring Lead

12 Volt

1шт.

AT78633

Housing

12 Volt

1шт.

Electrical Lighter

SUB FOR AT190190, 4357862 NLA 24 Volt

1шт.

43

FFSB102525

Diode

10шт.

44

FFSB102316

Elec. Connector Terminal

2шт.

45

Screw

PF10803 NLA, SUB FOR FFSB102788

4шт.

46

14H1000

Nut

0.112" FFSB102789 NLA

4шт.

47

4191772

Resistor

SUB FOR AT155250

1шт.

48

4379070

Strap

SUB FOR AT215559

1шт.

49

4204811

Screw

SUB FOR AT155253

1шт.

50

12H315

Lock Washer

0.164" SUB FOR 12M7063

1шт.

Выбрано товаров: 53