Качественные детали и логистика
Оригинальные и аналоговые запчасти с доставкой по России, Казахстану и Беларуси
©2022 PartSell ООО "Система" ИНН 2463123282 ОГРН 1212400004838
Центральный офис: г. Красноярск, Академика Киренского, д.87, пом.4
Телефон: 8 (800) 777-65-74 Email: zakaz@partsell.ru
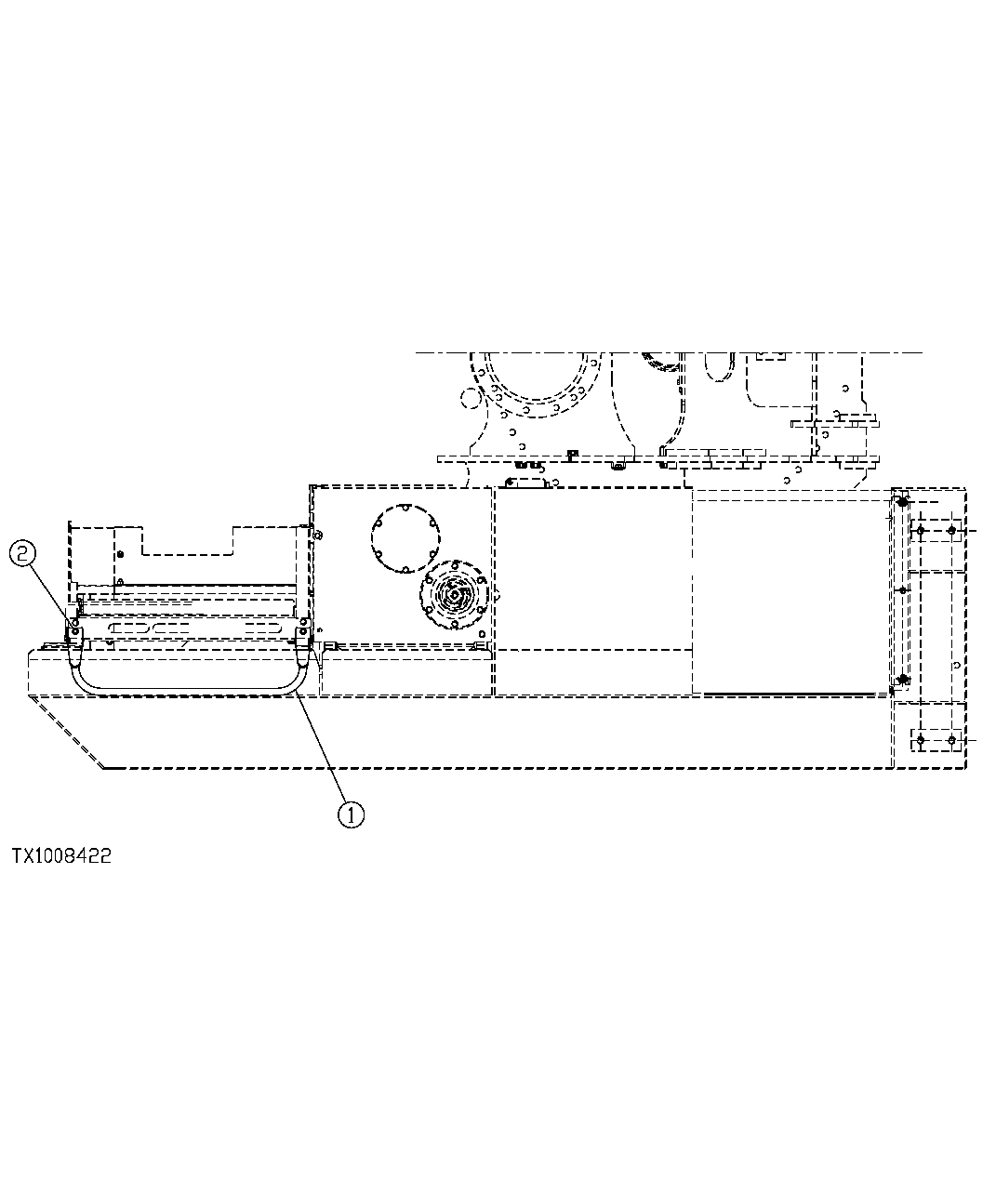
326 - RIGHT REAR HANDRAIL
№
Артикул
Название
Примечание
Количество
1
FFSB111096
Handrail
1шт.
2
19M7662
Cap Screw
M10 X 30 (SUB FOR FFSB106133)
2шт.
12M7066
Lock Washer
10 mm (SUB FOR FFSB106133)
24M7028
Washer
10.500 X 20 X 2 mm (SUB FOR FFSB106133)
Выбрано товаров: 4