Качественные детали и логистика
Оригинальные и аналоговые запчасти с доставкой по России, Казахстану и Беларуси
©2022 PartSell ООО "Система" ИНН 2463123282 ОГРН 1212400004838
Центральный офис: г. Красноярск, Академика Киренского, д.87, пом.4
Телефон: 8 (800) 777-65-74 Email: zakaz@partsell.ru
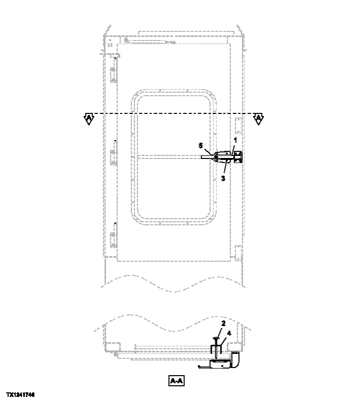
387 - REAR ENTRY CAB DOOR HANDLE, LATCH, AND LOCK
№
Артикул
Название
Примечание
Количество
1
Lock
ORDER FFSB102221, FFSB 102222, FFSB106972 NLA
1шт.
FFSB102221
Latch
FFSB105877
Handle
2
FFSB102222
Striker
3
19M7061
Screw
M6 X 25 FFSB106708 NLA
8шт.
4
21H1167
0.190" X 1/4" SUB FOR FFSB106649
3шт.
12H316
Lock Washer
0.216" SUB FOR FFSB106649
5
FFSB105925
Key
Выбрано товаров: 0