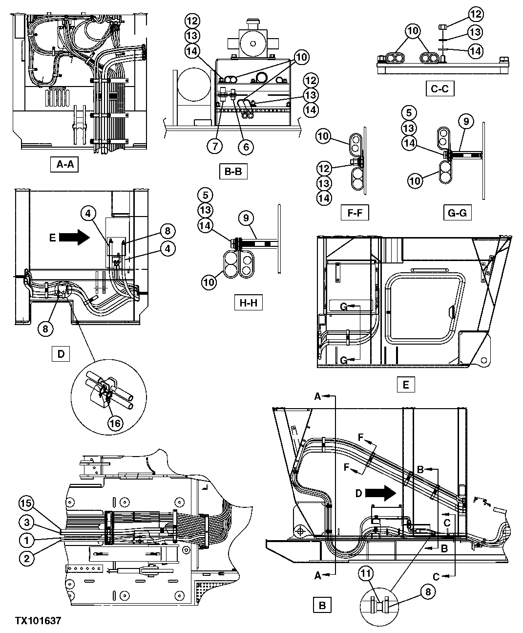
Запчасти John Deere 554 415 - REAR ENTRY CAB HEATER AND AIR CONDITIONING PLUMBING WITH 48 INCH RISER 1830C REAR ENTRY CAB HEATING AND AIR CONDITIONING

Схема запчастей John Deere 554 - 415 - REAR ENTRY CAB HEATER AND AIR CONDITIONING PLUMBING WITH 48 INCH RISER 1830C REAR ENTRY CAB HEATING AND AIR CONDITIONING
FIT
1:1
100%

Артикул

Название

Примечание

Количество

1

FF202372

Refrigerant Hose

SUB FOR FFSB112127

1шт.

2

FF202373

Refrigerant Hose

SUB FOR FFSB112128

1шт.

3

FFSB102824

Radiator Hose

1шт.

4

Bulk Hose

FFSB112157 NLA, MF TY22328 CTL 1770MM

2шт.

5

19M7662

Cap Screw

M10 X 30 SUB FOR FFSB107141

3шт.

6

FFSB110573

Adapter Fitting

1шт.

7

FFSB110574

Adapter Fitting

1шт.

8

FFSB102829

Clamp

10шт.

9

FFSB107369

Nut

3шт.

10

FFSB107516

Clamp

24шт.

11

FFSB110575

Adapter Fitting

2шт.

12

14M7274

Nut

M10 SUB FOR FFSB107411

10шт.

13

12M7066

Lock Washer

10 mm SUB FOR FFSB107409

13шт.

14

24M7096

Washer

10.500 X 18 X 1.600 mm SUB FOR FFSB107709

15шт.

15

Bulk Hose

FFSB113472 NLA, MF TY22328, CTL 6722MM

1шт.

16

R76477

Tie Band

SUB FOR FFSB102324

2шт.

Выбрано товаров: 0