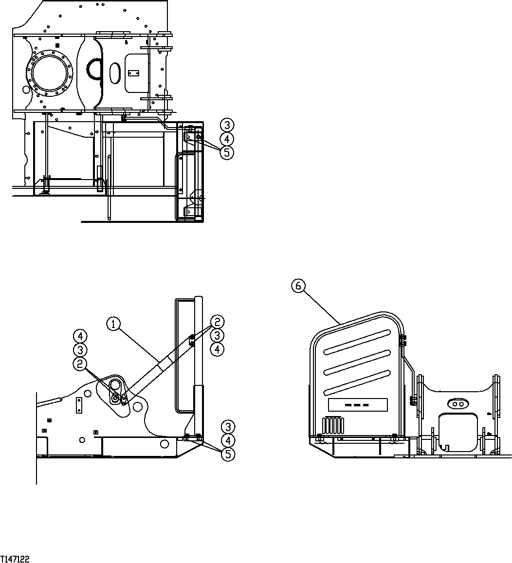
Запчасти John Deere 554 442 - RIGHT FRONT LOG DEFLECTOR 1913 MISCELLANEOUS SHIELDS

Схема запчастей John Deere 554 - 442 - RIGHT FRONT LOG DEFLECTOR 1913 MISCELLANEOUS SHIELDS
FIT
1:1
100%

Артикул

Название

Примечание

Количество

1

FFSB109085

Brace

(SUB FOR FFSB109085)

1шт.

2

19M7950

Cap Screw

M20 X 45 (SUB FOR FFSB109232 OR J922045)

2шт.

3

12M7070

Lock Washer

20 mm (SUB FOR FFSB109365)

8шт.

4

24M7051

Washer

21 X 37 X 3 mm (SUB FOR FFSB106002)

8шт.

5

19M7597

Cap Screw

M20 X 50 (SUB FOR FFSB105624)

6шт.

6

FFSB109009

Deflector

(SUB FOR FFSB109009)

1шт.

FFSB113532

Deflector

1шт.

Выбрано товаров: 7