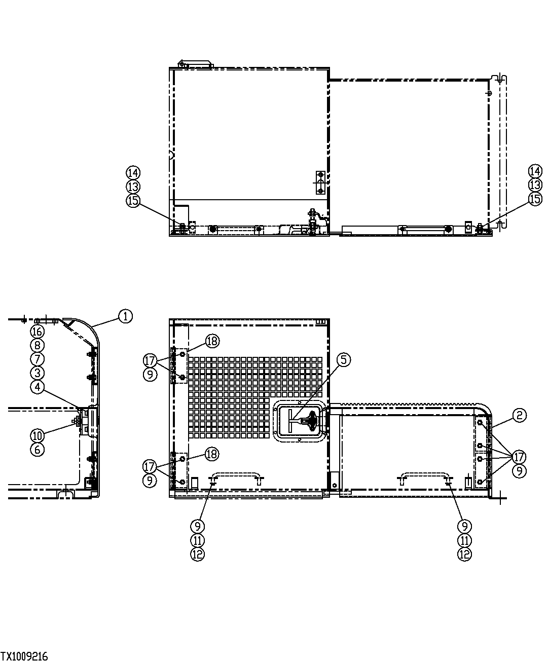
Запчасти John Deere 554 581 - TOOLBOX DOORS (PROCESSOR CONFIGURATION) (SN 200336- ) 3363 Lines, Hoses & Fittings

Схема запчастей John Deere 554 - 581 - TOOLBOX DOORS (PROCESSOR CONFIGURATION) (SN 200336- ) 3363 Lines, Hoses & Fittings
FIT
1:1
100%

Артикул

Название

Примечание

Количество

1

FFSB114609

Door

1шт.

2

FFSB113260

Door

1шт.

3

24M7096

Washer

10.500 X 18 X 1.600 mm (SUB FOR FFSB107709)

2шт.

4

19M7167

Cap Screw

M10 X 25 (SUB FOR FFSB108726)

2шт.

5

FFSB106270

Latch

1шт.

6

14M7141

Nut

M14 (SUB FOR FFSB108115)

1шт.

7

12M7066

Lock Washer

10 mm (SUB FOR FFSB107409)

2шт.

8

14M7274

Nut

M10 (SUB FOR FFSB107411)

2шт.

9

24M7047

Washer

13 X 24 X 2.500 mm (SUB FOR FFSB105797)

10шт.

10

FFSB111739

Cam

1шт.

11

FFSB108263

Latch

2шт.

12

11M7017

Cotter Pin

3.200 X 32 mm (SUB FOR FFSB108266)

2шт.

13

14M7275

Nut

M12 (SUB FOR FFSB107245)

8шт.

14

12M7067

Lock Washer

12 mm (SUB FOR FFSB107911)

8шт.

15

24H1226

Washer

1/2" X 1-1/4" X 0.083" (SUB FOR FFSB108137)

8шт.

16

24M7028

Washer

10.500 X 20 X 2 mm (SUB FOR FFSB107142)

2шт.

17

19M7403

Cap Screw

M12 X 35 (SUB FOR FFSB109213)

8шт.

18

FFSB115262

Hinge

4шт.

Выбрано товаров: 18