Качественные детали и логистика
Оригинальные и аналоговые запчасти с доставкой по России, Казахстану и Беларуси
©2022 PartSell ООО "Система" ИНН 2463123282 ОГРН 1212400004838
Центральный офис: г. Красноярск, Академика Киренского, д.87, пом.4
Телефон: 8 (800) 777-65-74 Email: zakaz@partsell.ru
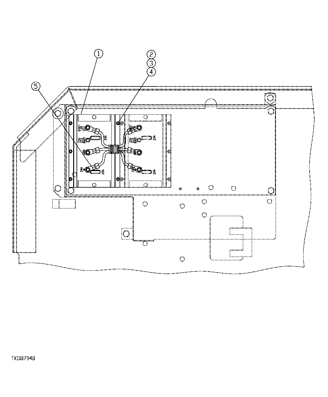
276 - HEAVY DUTY POWER CONVERTER AND ATTACHING WIRING HARNESS
№
Артикул
Название
Примечание
Количество
1
AT142288
Converter
(SUB FOR FFSB108503)
1шт.
14H786
Nut
1/4" Not Illustrated
2шт.
2
24M7348
Washer
5.500 X 10 X 1 mm (SUB FOR FFSB107713)
6шт.
3
FFSB110195
Bolt
4
12M7112
Lock Washer
5.300 mm (SUB FOR FFSB110194)
5
FFSB110770
Wiring Harness
Выбрано товаров: 0