Запчасти John Deere 7C ZTS 390 - SIDE ENTRY CAB 48 INCH RISER COMPARTMENT DOOR 1810B SIDE ENTRY CAB

Схема запчастей John Deere 7C ZTS - 390 - SIDE ENTRY CAB 48 INCH RISER COMPARTMENT DOOR 1810B SIDE ENTRY CAB
FIT
1:1
100%

Артикул

Название

Примечание

Количество

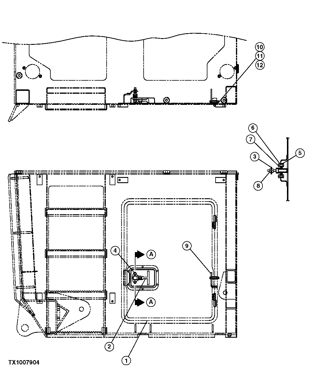
1

FFSB110126

Door

1шт.

2

FFSB106270

Latch

1шт.

3

FFSB111739

Cam

1шт.

4

19M7402

Cap Screw

M10 X 25 (SUB FOR FFSB108726 AND 19M7167)

2шт.

5

24M7096

Washer

10.500 X 18 X 1.600 mm (SUB FOR FFSB107709)

2шт.

6

12M7066

Lock Washer

10 mm (SUB FOR FFSB107409)

4шт.

7

14M7274

Nut

M10 (SUB FOR FFSB107411)

2шт.

8

14M7141

Nut

M14 (SUB FOR FFSB108115)

2шт.

9

FFSB103456

Bracket

1шт.

10

19M8402

Cap Screw

M8 X 65 (SUB FOR FFSB108150 AND 19M7270)

1шт.

11

24M7055

Washer

8.400 X 16 X 1.600 mm (SUB FOR FFSB107966)

2шт.

12

14M7273

Nut

M8 (SUB FOR FFSB108151)

2шт.

Выбрано товаров: 12