Запчасти John Deere 7C ZTS 599 - CONTROL VALVE TO BOOM LINE HOSES (SINGLE FUNCTION) 3363 LINES, HOSES & FITTINGS

Схема запчастей John Deere 7C ZTS - 599 - CONTROL VALVE TO BOOM LINE HOSES (SINGLE FUNCTION) 3363 LINES, HOSES & FITTINGS
FIT
1:1
100%

Артикул

Название

Примечание

Количество

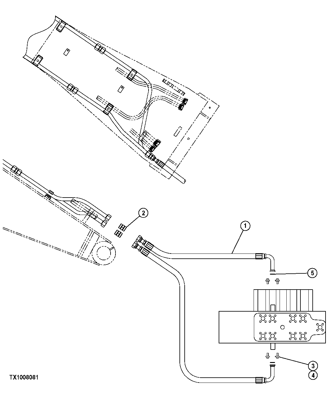
1

FFSB111783

Hydraulic Hose

(SUB FOR FFSB111782)

2шт.

Cover

( FFSB111784 NLA) (FURNISH XHG-150, CUT TO 2050 MM LENGTH) (SUB FOR FFSB111782)

2шт.

2

38H1281

Union Fitting

(SUB FOR FFSB102147)

2шт.

T76938

O-Ring

2шт.

3

H61354

Flange Fitting

(SUB FOR FFSB110184)

4шт.

4

AT213614

Screw

(SUB FOR FFSB109271)

8шт.

5

T78313

O-Ring

(SUB FOR FFSB106430)

2шт.

Выбрано товаров: 7