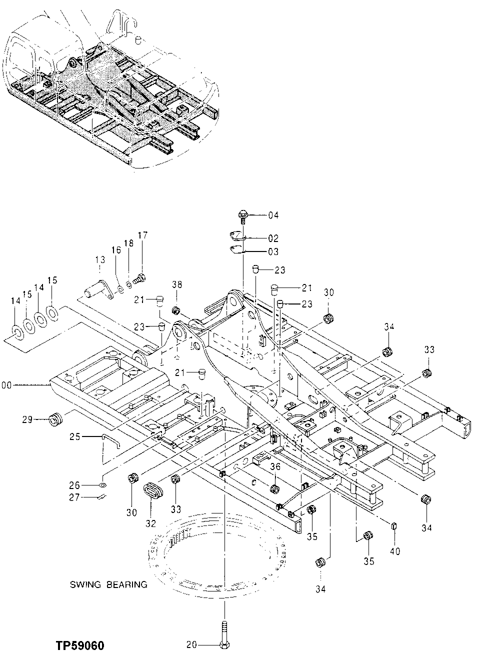
Запчасти John Deere 330LC, 370 62 - Main Frame 1740 Frame Installation

Схема запчастей John Deere 330LC, 370 - 62 - Main Frame 1740 Frame Installation
FIT
1:1
100%

Артикул

Название

Примечание

Количество

0

9194757

Main Frame

(SUB FOR FFSB107163)

1шт.

2

4255799

Cover

(SUB FOR AT154929)

1шт.

3

4161735

Gasket

(SUB FOR AT130379)

1шт.

4

19M7402

Cap Screw

M10 X 25

2шт.

12M7066

Lock Washer

10 mm

2шт.

24M7028

Washer

10.500 X 20 X 2 mm

2шт.

13

8069305

Pin Fastener

(SUB FOR AT250216)(FOR USE WITHOUT BOOM CYLINDER GUARD)

2шт.

FFSB103279

Pin Fastener

(FOR USE WITH BOOM CYLINDER GUARD)

2шт.

14

4373798

Wear Plate

(SUB FOR AT250013)

4шт.

15

4373799

Wear Plate

(SUB FOR AT250014)

4шт.

16

4040826

Bushing

21.200 X 60 X 10 mm (SUB FOR AT131671)

2шт.

17

19M7950

Cap Screw

M20 X 45 (SUB FOR J922045)

2шт.

18

J257220

Spring Washer

(SUB FOR AT213605)

2шт.

20

J922706

Screw

(SUB FOR AT250283)

36шт.

21

4385472

Pin Fastener

(SUB FOR AT250044)

3шт.

23

425175

Plug

(SUB FOR AT132013)

5шт.

25

4341788

Rod

(SUB FOR AT213884 OR 4341788J)

1шт.

26

24M7055

Washer

8.400 X 16 X 1.600 mm

1шт.

27

H132922

Cotter Pin

1шт.

29

4196826

Grommet

(SUB FOR TH111284)

1шт.

30

4273759

Grommet

(SUB FOR AT201014)

2шт.

32

4277018

Bushing

(SUB FOR AT201018)

1шт.

33

4200176

Grommet

(SUB FOR TH109397)

2шт.

34

4255567

Bushing

(SUB FOR AT155271, 4255530)

5шт.

35

4201749

Grommet

(SUB FOR TH108205)

2шт.

36

4201995

Grommet

(SUB FOR TH109396)

1шт.

38

4210661

Grommet

(SUB FOR TH111369)

3шт.

40

Bushing

1шт.

Выбрано товаров: 28